Maison neuve à 
  Villers-Saint-Frambourg
 (60810)  Référence :
 XDSS2226379_2 
Prix du projet : Maison avec Terrain
prix 270 000 €
- 4 pièces
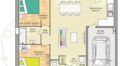
- 2 chambres
- Surface maison 65 m2
Venez concevoir votre maison.
Exemple de projet maison de 65 m² loi Carrez + garage intégré:
Bel espace de vie traversant de plus de 32 m² + wc indépendant, garage intégré, 2 belles chambres, 1 salle de bain.
Tous nos projets sont entièrement réalisés sur-mesure, de nombreuses prestations incluses: baies coulissantes en aluminium, volets roulants intégrés à la maçonnerie (non-apparents) motorisés.
Entrée, cuisine, pièce de vie, cellier et pièces d'eau carrelés,
Pompe à chaleur (classe énergétique A+), plancher chauffant RDC (et ETAGE), sèche-serviettes, plusieurs choix de menuiseries intérieures, construction en brique. RE 2020.
Pour tout renseignement contacter XAVIER de l'agence Maisons France Confort au : 06 16 27 53 27
Mentions légales
Terrain proposé par un partenaire foncier selon disponibilités et autorisation de publicité au prix de 105 000 €. Hors droit d'enregistrement et frais de notaire. Maison proposée, avec un contrat de construction de maison individuelle, dans le cadre de la loi du 19/12/1990, au prix de 165 000 € (Hors branchements et raccordements, papiers peints, peintures, revêtement de sol dans les chambres, qui sont chiffrés dans les travaux qui restent à charge du client. Tarif modifiable sans préavis). Étiquette énergie : A. Différents modèles disponibles pour ce terrain. Assurances et garanties du constructeur comprises (RC professionnelle, décennale, dommage ouvrage).Agence Maisons France Confort de Compiègne (60200)
- Téléphone :
- 03 44 86 81 34
- Adressse :
-  47, cours Guynemer
 60200 Compiègne, France
 
  
  
  
 