Maison neuve à
Villiers-le-Sec
(95720) Référence :
CY2410945_2
Prix du projet : Maison avec Terrain
prix 345 000 €
- 5 pièces
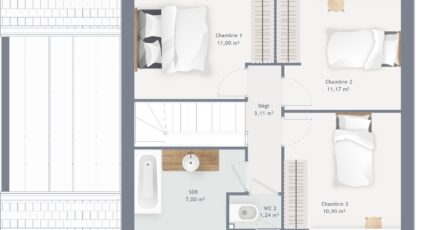
- 3 chambres
- Surface maison 90 m2
VENTE d'une maison F5 (90 m²) à Villiers-le-Sec
IDÉALEMENT SITUÉE - MAISON 5 PIÈCES NEUVE
En vente : à proximité du Transilien H (gare de Belloy-Saint-Martin, 35 min de Paris), Maisons France Confort Mareuil-lès-Meaux vous propose, idéalement située dans Villiers-le-Sec (95720), cette maison de 5 pièces de 90 m² et de 603 m² de terrain. Son intérieur se divise en trois chambres, une cuisine et une salle de bains.
Cette maison compte 2 niveaux. Elle est neuve.
Cette maison se situe dans un secteur recherché. Niveau transports, on trouve la ligne de RER D (Goussainville) ainsi que 15 gares à moins de 10 minutes en voiture.
Elle est proposée à l'achat pour 345 000 €.
Contactez Cedric YAHIAOUI (06-66-57-00-63) pour plus d'informations sur la maison, sur les modalités de vente ou sur les démarches à suivre. Maisons France Confort Mareuil-lès-Meaux est là pour vous accompagner à toutes les étapes de l'achat.
Annonce proposée par un Agent Commercial Partenaire.
Mentions légales
Terrain proposé par un partenaire foncier selon disponibilités et autorisation de publicité au prix de 183 000 €. Hors droit d'enregistrement et frais de notaire. Terrain + Maison proposés au prix de 345 000 € (Hors branchements et raccordements, papiers peints, peintures, revêtement de sol dans les chambres. Tarif modifiable sans préavis). Etiquette énergie : A. Différents modèles disponibles pour ce terrain. Assurances et garanties du constructeur (RC professionnelle, décennale, dommage ouvrage, garantie de remboursement de l'acompte, livraison à prix et délai convenu) : https://www.maisons-france-confort.fr/mentions-legales/. HEXAOM Services est enregistré auprès de l'ORIAS en tant que Courtier en financement, Niveau 1, sous le numéro 14001345.Agence Maisons France Confort de Mareuil-lès-Meaux (77100)
- Téléphone :
- 01 60 09 28 30
- Adressse :
- Domexpo Est Village La Hayette
77100 Mareuil-lès-Meaux, France
