Maison neuve à
Villiers-le-Sec
(95720) Référence :
VG2451041_3
Prix du projet : Maison avec Terrain
prix 375 944 €
- 5 pièces
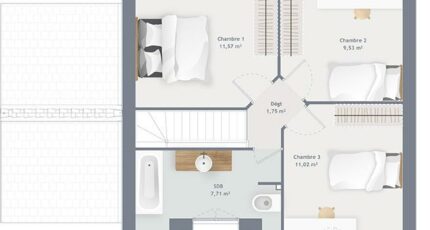
- 3 chambres
- Surface maison 80 m2
VENTE : maison de 5 pièces (80 m²) à Villiers-le-Sec
MAISON NEUVE - ENVIRONNEMENT CALME
À Villiers-le-Sec (95720), découvrez ce projet de maison neuve de 5 pièces offrant 80 m² habitables sur un terrain de 613 m², dans un cadre de vie calme et agréable.
Cette maison à étage propose trois chambres, une salle de bains et un bel espace de vie avec cuisine ouverte. Conçue selon les dernières normes de construction, elle offre confort moderne et performance énergétique.
La commune bénéficie d'une situation pratique avec la proximité de la gare de Belloy-Saint-Martin (ligne H du Transilien), permettant de rejoindre Paris Gare du Nord en environ 35 minutes. Les grands axes routiers tels que la N104 (Francilienne), la N1 et l'A16 sont facilement accessibles.
Les écoles, commerces et services du quotidien sont disponibles dans les communes voisines de Luzarches, Viarmes et Belloy-en-France, situées à quelques minutes.
Prix de vente : 375 944 €.
Pour tout renseignement sur ce projet de construction ou sur les modalités de vente, contactez Vincent Gaudu (07-89-23-62-11).
Maisons France Confort Moisselles vous accompagne dans toutes les étapes de votre projet immobilier.
Mentions légales
Terrain proposé par un partenaire foncier selon disponibilités et autorisation de publicité au prix de 185 000 €. Hors droit d'enregistrement et frais de notaire. Terrain + Maison proposés au prix de 375 944 € (Hors branchements et raccordements, papiers peints, peintures, revêtement de sol dans les chambres. Tarif modifiable sans préavis). Etiquette énergie : A. Différents modèles disponibles pour ce terrain. Assurances et garanties du constructeur (RC professionnelle, décennale, dommage ouvrage, garantie de remboursement de l'acompte, livraison à prix et délai convenu) : https://www.maisons-france-confort.fr/mentions-legales/. HEXAOM Services est enregistré auprès de l'ORIAS en tant que Courtier en financement, Niveau 1, sous le numéro 14001345.Agence Maisons France Confort de Moisselles (95570)
- Téléphone :
- 01 39 91 72 46
- Adressse :
- Domexpo Nord
95570 Moisselles, France
