Maison neuve à
Viriat
(01440) Référence :
SG2633_2
Prix du projet : Maison avec Terrain
prix 306 500 €
- 4 pièces
- 3 chambres
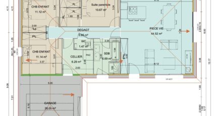
- Surface maison 104 m2
Maison de 4 pièces (104 m²) à vendre à Viriat
PROCHE DE BOURG-EN-BRESSE - MAISON 4 PIÈCES NEUVE
À vendre : à deux pas de Bourg-en-Bresse, venez découvrir cette maison de 4 pièces de plain-pied de 104 m² à Viriat (01440). Conçue de plain-pied, elle compte trois chambres, une cuisine et une salle de bains.
Le terrain de la propriété s'étend sur 619 m².
La maison est neuve.
Des écoles primaires sont implantées dans la commune et, comme l'École Primaire Privée Saint Joseph. Niveau transports en commun, il y a deux gares (Bourg-en-Bresse et Polliat) à moins de 10 minutes en voiture. Les autoroutes A39 et A40 sont accessibles à moins de 4 km. On trouve une bibliothèque et un commerce à quelques minutes du logement.
Son prix de vente est de 306 500 €.
Contactez notre agence (GABRILLARGUES Sébastien : 06-81-77-73-67) pour plus d'informations sur cette maison. Maisons France Confort Bourg-en-Bresse vous accompagne dans toutes vos démarches et à toutes les étapes de l'achat.
Annonce proposée par un Agent Commercial Partenaire.
Mentions légales
Terrain proposé par un partenaire foncier selon disponibilités et autorisation de publicité au prix de 89 000 €. Hors droit d'enregistrement et frais de notaire. Terrain + Maison proposés au prix de 306 500 € (Hors branchements et raccordements, papiers peints, peintures, revêtement de sol dans les chambres. Tarif modifiable sans préavis). Etiquette énergie : A. Différents modèles disponibles pour ce terrain. Assurances et garanties du constructeur (RC professionnelle, décennale, dommage ouvrage, garantie de remboursement de l'acompte, livraison à prix et délai convenu) : https://www.maisons-france-confort.fr/mentions-legales/. HEXAOM Services est enregistré auprès de l'ORIAS en tant que Courtier en financement, Niveau 1, sous le numéro 14001345.Agence Maisons France Confort de Bourg-en-Bresse (01000)
- Téléphone :
- 04 74 14 04 47
- Adressse :
- 20, rue Gabriel Vicaire
01000 Bourg-en-Bresse, France