Maison neuve à
Vismes (80140) Référence : DD_eu43_10-0_2

Prix du projet : Maison avec Terrain

prix 170 900 €

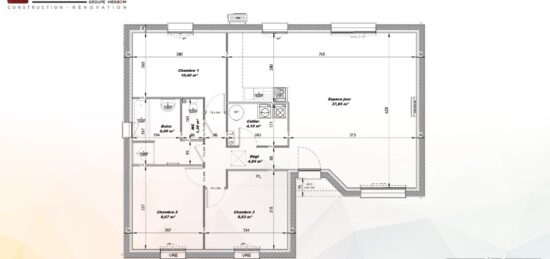
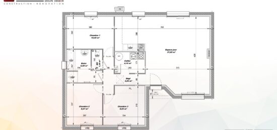
  • 4 pièces
  • 3 chambres
  • Surface maison 93 m2

Vismes : maison T4 (93 m²) en vente
MAISON 4 PIÈCES NEUVE
À vendre à 27 km de la Manche, ayez le coup de coeur pour cette maison de 4 pièces de plain-pied de 93 m² à Vismes (80140). Conçue de plain-pied, elle est composée de trois chambres, d'une cuisine et d'une salle de bains.
Le terrain du bien s'étend sur 1 000 m².
Cette maison est neuve.
Une école élémentaire est implantée dans le quartier. Côté transports, il y a deux gares (Longroy-Gamaches et Blangy-sur-Bresle) à moins de 10 minutes en voiture. L'autoroute A28 est accessible à 3 km.
Son prix de vente est de 170 900 €.
Prenez contact avec notre agence (Delphine DERULLES : 06-67-13-79-40) pour plus d'informations sur cette maison ou sur les modalités de vente.

Mentions légales

Terrain proposé par un partenaire foncier selon disponibilités et autorisation de publicité au prix de 32 400 €. Hors droit d'enregistrement et frais de notaire. Maison proposée, avec un contrat de construction de maison individuelle, dans le cadre de la loi du 19/12/1990, au prix de 138 500 € (Hors branchements et raccordements, papiers peints, peintures, revêtement de sol dans les chambres, qui sont chiffrés dans les travaux qui restent à charge du client. Tarif modifiable sans préavis). Étiquette énergie : A. Différents modèles disponibles pour ce terrain. Assurances et garanties du constructeur comprises (RC professionnelle, décennale, dommage ouvrage).