Maison neuve à
Vismes
(80140) Référence :
DD_eu43_10-0_3
Prix du projet : Maison avec Terrain
prix 171 400 €
- 4 pièces
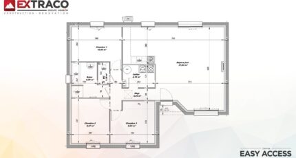
- 3 chambres
- Surface maison 84 m2
VENTE d'une maison de 4 pièces (84 m²) à Vismes
MAISON 4 PIÈCES NEUVE
À 27 km de la Manche, à vendre à Vismes (80140), nous vous présentons cette maison de 4 pièces de plain-pied de 84 m² et de 1 000 m² de terrain.
Conçue de plain-pied, elle compte trois chambres, une cuisine et une salle de bains. La maison est neuve.
Il y a une école élémentaire dans le quartier. Niveau transports, on trouve les gares Longroy-Gamaches et Blangy-sur-Bresle à moins de 10 minutes en voiture. On trouve un accès à l'autoroute A28 à 3 km.
Elle est proposée à l'achat pour 171 400 €.
Contactez Delphine DERULLES (06-67-13-79-40) pour tout renseignement sur cette maison. Les Maisons Extraco Eu est là pour vous accompagner dans toutes vos démarches.