Maison neuve à
Warluis
(60430) Référence :
CY2316587_1
Prix du projet : Maison avec Terrain
prix 260 000 €
- 5 pièces
- 3 chambres
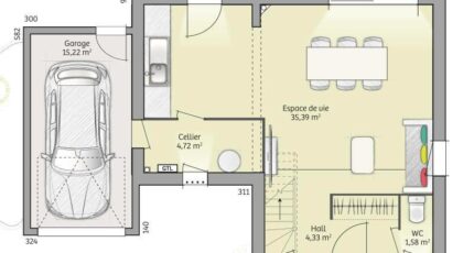
- Surface maison 90 m2
Warluis : maison T5 (90 m²) à vendre
QUARTIER RECHERCHÉ - MAISON 5 PIÈCES NEUVE
À vendre à quelques kilomètres de Beauvais, venez découvrir, nichée dans un quartier convoité de Warluis (60430), cette maison de 5 pièces de 90 m². Elle propose trois chambres, une cuisine et une salle de bains.
Le terrain de la propriété est de 710 m².
C'est une maison de 2 niveaux. Elle est neuve.
Cette maison se situe dans un secteur recherché. On y trouve une école primaire. Niveau transports en commun, on trouve six gares à moins de 10 minutes en voiture. L'autoroute A16 et la nationale N31 sont accessibles à moins de 4 km. Il y a un tennis, une boulangerie et un commerce dans les environs.
Elle est à vendre pour la somme de 260 000 €.
Contactez Cedric YAHIAOUI (tél : 06-66-57-00-63) pour tout renseignement sur la maison.
Annonce proposée par un Agent Commercial Partenaire.
Mentions légales
Terrain proposé par un partenaire foncier selon disponibilités et autorisation de publicité au prix de 85 000 €. Hors droit d'enregistrement et frais de notaire. Maison proposée, avec un contrat de construction de maison individuelle, dans le cadre de la loi du 19/12/1990, au prix de 175 000 € (Hors branchements et raccordements, papiers peints, peintures, revêtement de sol dans les chambres, qui sont chiffrés dans les travaux qui restent à charge du client. Tarif modifiable sans préavis). Étiquette énergie : A. Différents modèles disponibles pour ce terrain. Assurances et garanties du constructeur comprises (RC professionnelle, décennale, dommage ouvrage).Agence Maisons France Confort de Magny-le-Hongre (77700)
- Téléphone :
- 01 84 80 92 96
- Adressse :
- 11 rue de Courtalin
77700 Magny-le-Hongre, France
