Maison neuve à
Yerres
(91330) Référence :
JR2441315_1
Prix du projet : Maison avec Terrain
prix 460 000 €
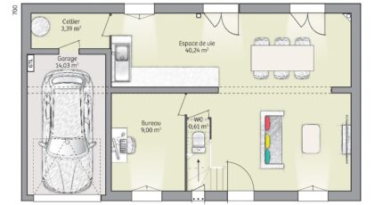
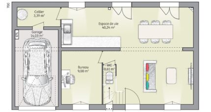
- 5 pièces
- 3 chambres
- Surface maison 90 m2
Maison F5 (90 m²) en vente à Yerres
MAISON 5 PIÈCES NEUVE
Au pied du RER D (20 min de Paris), nous vous proposons cette maison de 5 pièces de 90 m² à Yerres (91330). Elle offre trois chambres, une cuisine et une salle de bains.
Le terrain de la propriété est de 600 m².
Cette maison compte 2 niveaux. Elle est neuve.
On trouve des établissements scolaires de tous niveaux à moins de 10 minutes à pied, tout comme une structure d'accueil pour les tout-petits. Niveau transports en commun, il y a trois lignes de RER (D, A et C) ainsi que 23 gares à moins de 10 minutes en voiture. On trouve un supermarché, des commerces, des boulangeries, un bureau de poste et quatre épiceries à proximité du bien. Le marché Place du marché anime le quartier.
Son prix de vente est de 460 000 €.
Contactez Jerome RAOUX (tél : 06-35-09-62-05) pour toute information sur cette maison, sur les démarches à suivre ou sur les modalités de vente. Concrétisez vos projets immobiliers avec Maisons France Confort Nemours.
Annonce proposée par un Agent Commercial Partenaire.
Mentions légales
Terrain proposé par un partenaire foncier selon disponibilités et autorisation de publicité au prix de 245 000 €. Hors droit d'enregistrement et frais de notaire. Terrain + Maison proposés au prix de 460 000 € (Hors branchements et raccordements, papiers peints, peintures, revêtement de sol dans les chambres. Tarif modifiable sans préavis). Etiquette énergie : A. Différents modèles disponibles pour ce terrain. Assurances et garanties du constructeur (RC professionnelle, décennale, dommage ouvrage, garantie de remboursement de l'acompte, livraison à prix et délai convenu) : https://www.maisons-france-confort.fr/mentions-legales/. HEXAOM Services est enregistré auprès de l'ORIAS en tant que Courtier en financement, Niveau 1, sous le numéro 14001345.Agence Maisons France Confort de Nemours (77140)
- Téléphone :
- 01 64 28 58 32
- Adressse :
- 16 Avenue Carnot
77140 Nemours, France
