Maison neuve à
Yerres
(91330) Référence :
SA2444674_3
Prix du projet : Maison avec Terrain
prix 400 000 €
- 5 pièces
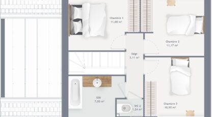
- 3 chambres
- Surface maison 90 m2
Yerres : maison de 5 pièces (90 m²) à vendre
MAISON 5 PIÈCES NEUVE
En vente : à deux pas du RER D (20 min de Paris), Maisons France Confort Ris-Orangis vous propose cette maison de 5 pièces de 90 m² et de 531 m² de terrain à Yerres (91330).
Cette maison compte 2 niveaux. Elle inclut trois chambres, une cuisine et une salle de bains. Cette maison est neuve.
Des écoles de tous types sont implantées à moins de 10 minutes à pied, tout comme une structure d'accueil pour la petite enfance. Niveau transports, il y a le RER D, A et C ainsi que 23 gares à moins de 10 minutes en voiture. On trouve de nombreux commerces, un bureau de poste, deux boucheries-charcuteries et plusieurs épiceries à quelques minutes. Enfin, le marché Place du marché anime les environs.
Elle est proposée à l'achat pour 400 000 €.
Prenez contact avec notre agence (AUGUSTINE Sabrina : 06-23-03-68-32) pour obtenir de plus amples renseignements sur cette maison.
Mentions légales
Terrain proposé par un partenaire foncier selon disponibilités et autorisation de publicité au prix de 199 000 €. Hors droit d'enregistrement et frais de notaire. Terrain + Maison proposés au prix de 400 000 € (Hors branchements et raccordements, papiers peints, peintures, revêtement de sol dans les chambres. Tarif modifiable sans préavis). Etiquette énergie : A. Différents modèles disponibles pour ce terrain. Assurances et garanties du constructeur (RC professionnelle, décennale, dommage ouvrage, garantie de remboursement de l'acompte, livraison à prix et délai convenu) : https://www.maisons-france-confort.fr/mentions-legales/. HEXAOM Services est enregistré auprès de l'ORIAS en tant que Courtier en financement, Niveau 1, sous le numéro 14001345.Agence Maisons France Confort de Ris-Orangis (91130)
- Téléphone :
- 01 60 47 83 15
- Adressse :
- 57 rue Albert Rémy
91130 Ris-Orangis, France
