Maison neuve à
Andernos-les-Bains
(33510) Référence :
FU2476908
Prix du projet : Maison avec Terrain
prix 728 000 €
- 5 pièces
- 4 chambres
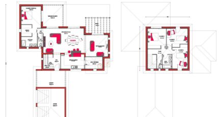
- Surface maison 150 m2
Magnifique maison de 150 m² - Andernos
Découvrez cette maison, offrant 150 m² habitable et de très belles prestations, idéalement située dans l'un des quartiers les plus recherchés d'Andernos, à proximité du centre ville, et des pistes cyclables.
Édifiée sur un terrain de 620 m², cette propriété séduit par son charme authentique associé à un excellent niveau de confort.
Une belle opportunité pour réaliser votre future résidence sur le Bassin d'Arcachon !
Le prix inclus l'achat du terrain, les frais de notaire, la construction, et les raccordements.
D'autres projets de constructions sont disponibles sur Andernos.
Vous pouvez prendre rdv pour visiter nos réalisations en cours.
N'hésitez pas à contacter Fabien Uteza au O6 64 12 72 67 pour plus d'informations.
Mentions légales
Terrain proposé par un partenaire foncier selon disponibilité dans le cadre d’un projet de construction avec Couleur Villas. Les descriptions, photographies, surfaces et prix illustrant l’annonce sont fournies à titre indicatif et ne sont pas contractuels. Non soumis au DPE. Différents modèles disponibles.Agence Couleur Villas de Andernos-les-Bains (33510)
- Téléphone :
- 05 56 07 00 00
- Adressse :
- 7 Avenue de Taussat
33510 Andernos-les-Bains, France