Maison neuve à
Boucau (64340) Référence : CB2481349

Prix du projet : Maison avec Terrain

prix 384 000 €

  • 3 pièces
  • 2 chambres
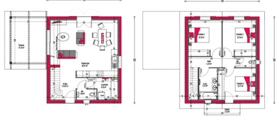
  • Surface maison 90 m2

Sur la commune de Boucau, découvrez ce projet de construction proposé par Couleur Villas, sur un terrain hors lotissement.
cette maison à étage de 90 m2 avec trois chambres vous offre un cadre de vie confortable et fonctionnel, idéal pour votre famille.
Votre conseillère Mme Christine Baudoin, à l'agence de Bayonne, est à votre écoute pour vous accompagner et concevoir un projet sur mesure, adapté à votre budget.
N'hésitez à contacter Mme Christine Baudoin (O6-87-14-38-67) pour convenir d'un rendez-vous.

Mentions légales

Terrain proposé par un partenaire foncier selon disponibilité dans le cadre d’un projet de construction avec Couleur Villas. Les descriptions, photographies, surfaces et prix illustrant l’annonce sont fournies à titre indicatif et ne sont pas contractuels. Non soumis au DPE. Différents modèles disponibles.

Contactez l'agence de Bayonne

05 59 25 04 24

    * Champs obligatoires

    Vos informations sont traitées par HEXAOM et transmises à un conseiller commercial qui vous contactera afin de répondre à votre demande. Les plans et images présentés sur notre site sont la propriété d’HEXAOM et ne peuvent pas être reproduits sans son accord. Pour retrouver notre politique de protection des données personnelles et exercer vos droits conformément à la « loi informatique et liberté » cliquez-ici.