Maison neuve à
Mouguerre
(64990) Référence :
CB2434027
Prix du projet : Maison avec Terrain
prix 398 578 €
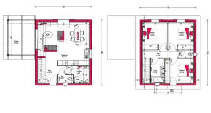
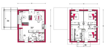
- 3 pièces
- 2 chambres
- Surface maison 90 m2
Couleur Villas vous présente ce projet sur la commune de Mouguerre, très bel emplacement dans un esprit résidentiel, en hauteur, belle vue dégagée.
Nous vous proposons une maison adaptée à la configuration du terrain, une maison de style traditionnelle Basque, se composant de trois chambres et d'une salle de bain à l'étage et d'un bel espace jour, cuisine, cellier de plain pied.
Les frais de terrassement et de notaire seront à budgétiser pour finaliser l'enveloppe financière.
N'hésitez pas à contacter et prendre rendez-vous avec votre conseillère Mme Christine Baudoin (O6-87-14-38-67) pour pouvoir échanger sur ce projet.
Mentions légales
Terrain proposé par un partenaire foncier selon disponibilité dans le cadre d’un projet de construction avec Couleur Villas. Les descriptions, photographies, surfaces et prix illustrant l’annonce sont fournies à titre indicatif et ne sont pas contractuels. Non soumis au DPE. Différents modèles disponibles.Agence Couleur Villas de Bayonne (64100)
- Téléphone :
- 05 59 25 04 24
- Adressse :
- 82 Avenue Maréchal Soult
64100 Bayonne, France