Maison neuve à
Mouguerre (64990) Référence : IC2305182

Prix du projet : Maison avec Terrain

prix 489 000 €

  • 5 pièces
  • 4 chambres
  • Surface maison 105 m2

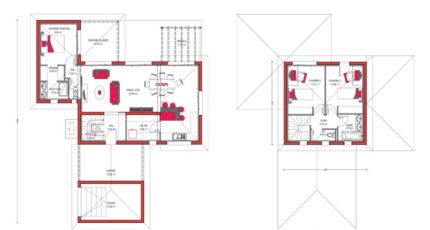
Au coeur du Pays basque, sur la commune de Mouguerre, Couleur villas vous propose de découvrir ce projet, terrain de 740 m2 + maison neuve style « Neo-basque » dans un cadre et un environnement paisible, proche de tous commerces, école et crèche.
Vous apprécierez ce projet de construction, composé d'une pièce de vie spacieuse de 43 m², une suite parentale comprenant une salle d'eau et un dressing, à l'étage deux belles chambres plus une salle de bain. à l'extérieur, une pergola et terrasse couverte de 10 m2, un carport et un garage viennent compléter ce bien.

Les frais de notaire et les frais de terrassement seront à ajouter uniquement sur le terrain.

Pour que nous puissions ensemble étudier votre projet, sur vos besoins et vos envies, définir votre enveloppe budgétaire ensemble, complète et adapté, je suis disponible pour vous recevoir en rendez-vous à l'agence de Bayonne, pour vous accompagner tout au long de votre projet de maison personnalisée, jusqu'à la livraison de votre maison.

Votre attachée commerciale Couleur Villas : Isabelle Carraro O6 99 95 90 21.

Illustration non contractuelle terrain : sous réserve de disponibilité auprès de notre partenaire foncier.

Mentions légales

Terrain proposé par un partenaire foncier selon disponibilité dans le cadre d’un projet de construction avec Couleur Villas. Les descriptions, photographies, surfaces et prix illustrant l’annonce sont fournies à titre indicatif et ne sont pas contractuels. Non soumis au DPE. Différents modèles disponibles.

Contactez l'agence de Bayonne

05 59 25 04 24

    * Champs obligatoires

    Vos informations sont traitées par HEXAOM et transmises à un conseiller commercial qui vous contactera afin de répondre à votre demande. Les plans et images présentés sur notre site sont la propriété d’HEXAOM et ne peuvent pas être reproduits sans son accord. Pour retrouver notre politique de protection des données personnelles et exercer vos droits conformément à la « loi informatique et liberté » cliquez-ici.