Maison neuve à
Nadaillac-de-Rouge (46350) Référence : MM2450628

Prix du projet : Maison avec Terrain

prix 230 000 €

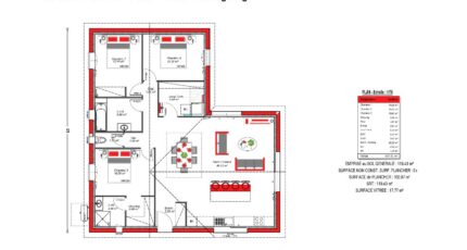
  • 4 pièces
  • 3 chambres
  • Surface maison 100 m2

Devenez propriétaires à Nadaillac de Rouge : Votre première villa, votre style, votre futur.
Marre de payer un loyer ? Et si vous dessiniez enfin votre propre chez-vous ?

À Nadaillac de Rouge, saisissez l'opportunité de construire votre première maison sur un terrain idéalement situé, proche des axes et des commodités. Nous avons conçu un projet de 100 m² moderne, lumineux et surtout évolutif, pour accompagner tous vos projets de vie.

Le coup de coeur sans les contraintes
Pourquoi s'épuiser dans des rénovations interminables et coûteuses ? Choisissez le confort immédiat :
Design sur-mesure : Une cuisine ouverte sur un grand salon pour recevoir, une suite pour vous, et des chambres prêtes pour le futur (bureau, amis, ou premier enfant).
Zéro travaux, 100 % déco : Tout est neuf, aux normes, et garanti. Consacrez votre énergie à la décoration, pas au ponçage des sols !
Extérieurs optimisés : Un jardin à votre image pour les barbecues entre amis, sans y passer tous vos week-ends pour l'entretien.

Un budget maîtrisé et intelligent
Construire dans le neuf, c'est faire un choix financier stratégique :
Frais de notaire réduits : Environ 2,5 % contre 8 % dans l'ancien. C'est autant d'argent en plus pour votre cuisine équipée !
Économies de chauffage : Grâce à la norme RE 2020, vos factures d'énergie sont au plancher. Plus de budget pour vos loisirs, moins pour les factures.
Prêt à Taux Zéro (PTZ) : Selon votre profil, profitez d'aides financières avantageuses pour booster votre projet.
"Arrêtez de rêver votre vie, commencez à la bâtir."

Un accompagnement de A à Z
Parce que c'est votre premier achat, nous ne vous lâchons pas dans la nature. De l'étude de sol au plan de financement, nous sécurisons chaque étape pour que votre projet reste un plaisir.
Prêts à sauter le pas ?
L'étude personnalisée et le chiffrage de votre projet sont gratuits et sans engagement.

📞 Contactez Marie MUNOZ au O6.71.63.16.59 pour visiter le terrain et lancer votre nouvelle vie à Na

Mentions légales

Terrain proposé par un partenaire foncier selon disponibilité dans le cadre d’un projet de construction avec Alpha Constructions. Les descriptions, photographies, surfaces et prix illustrant l’annonce sont fournies à titre indicatif et ne sont pas contractuels. Non soumis au DPE. Différents modèles disponibles.

Contactez l'agence de Brive-la-Gaillarde

05 55 23 02 47

    * Champs obligatoires

    Vos informations sont traitées par HEXAOM et transmises à un conseiller commercial qui vous contactera afin de répondre à votre demande. Les plans et images présentés sur notre site sont la propriété d’HEXAOM et ne peuvent pas être reproduits sans son accord. Pour retrouver notre politique de protection des données personnelles et exercer vos droits conformément à la « loi informatique et liberté » cliquez-ici.