Maison neuve à
Payrac
(46350) Référence :
MM2471629_1
Prix du projet : Maison avec Terrain
prix 330 000 €
- 4 pièces
- 3 chambres
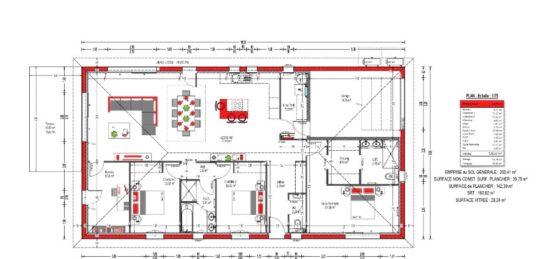
- Surface maison 120 m2
Nouveau projet de construction - Payrac (19)
Découvrez ce superbe projet de construction situé dans le charmant et paisible village de Payrac, un véritable havre de paix situé en Gourdon et Souillac. Avec les plus beaux sites touristiques de la région, ce projet vous offrira un emplacement privilégié au coeur d'une magnifique région.
Un cadre idéal pour profiter de la tranquillité sans vous éloigner de la vie quotidienne.
Une maison en T moderne, lumineuse et parfaitement pensée - 120 m²
Cette maison au design élégant a été conçue pour offrir confort, fonctionnalité et luminosité :
- Grand garage attenant
- Cellier donnant sur une cuisine ouverte, elle-même ouverte sur un vaste espace de vie baigné de lumière
- Volumes optimisés, sans perte d'espace ni dégagements inutiles
- Porte-rentrant apportant charme, cachet et confort au quotidien
- Terrasse couverte en prolongement de la pièce de vie.
Espace nuit parfaitement organisé
- L'espace nuit se compose de :
- 2 chambres confortables, toutes équipées de placards intégrés
- Salle d'eau équipée d'une grande douche italienne et d'une double vasque.
- 1 suite parentale spacieuse et agréable avec un salle d'eau fonctionnelle équipée d'un douche italienne et d'une vasque.
- Des pièces pensées pour faciliter l'aménagement et le bien-être
cette maison est un véritable coup de coeur pour ceux qui recherchent un logement :
- Simple et pratique
- Très lumineux
- Fonctionnel au quotidien
Offrant une qualité de vie exceptionnelle
Intéressé(e) par ce projet ?
N'hésitez pas à contacter Marie MUNOZ au 06 71 63 16 59, pour plus de renseignements ou programmer un rendez-vous.
Mentions légales
Terrain proposé par un partenaire foncier selon disponibilité dans le cadre d’un projet de construction avec Alpha Constructions. Les descriptions, photographies, surfaces et prix illustrant l’annonce sont fournies à titre indicatif et ne sont pas contractuels. Non soumis au DPE. Différents modèles disponibles.Agence Alpha Constructions de Brive-la-Gaillarde (19100)
- Téléphone :
- 05 55 23 02 47
- Adressse :
- 10 Rue Armand Sourie
19100 Brive-la-Gaillarde, France