Maison neuve à
Saubion
(40230) Référence :
AD2481531_1
Prix du projet : Maison avec Terrain
prix 392 000 €
- 3 pièces
- 2 chambres
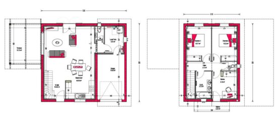
- Surface maison 49 m2
Amélie DABA des Maisons MCA à Capbreton, vous propose d'adapter le modèle Lys, sur ce joli terrain d'environ 671m², situé sur la commune de Saubion, à environ 30 minutes de Bayonne, et 10 minutes de la plage de Seignosse.
Cette maison compacte et optimisée, offre un hall d'entrée avec placard. Une belle pièce de vie avec une cuisine ouverte et cellier attentant, pour une superficie totale de plus de 43m2. L'espace nuit est composé de 3 belles chambres avec placards, un WC séparé et une salle de bains. Une pergola vient compléter ce bel ensemble.
Vous serez séduits par ses volumes optimisés, et sa pièce de vie lumineuse.
Ce projet peut-être modifié sur mesure, et il existe en différentes superficies, allant de 49m2 à 100m2, afin de s'adapter au mieux à votre mode de vie
Le prix inclus les frais de notaire et de raccordement.
Contactez vite votre conseillère Amélie DABA au O6.82.28.88.34 à l'agence MCA de Capbreton, afin qu'elle vous guide dans les démarches et vous accompagne dans ce projet de construction personnalisé.
Mentions légales
Idée de réalisation en modèle prêt à décorer sur l'un de nos terrains partenaires, sous réserve de disponibilités. Voir détails en agence.Agence Maisons de la Côte Atlantique de Capbreton (40130)
- Téléphone :
- 05 58 74 97 20
- Adressse :
- Place de la Gare
40130 Capbreton, France
