Maison neuve à
Château-Thierry
(02400) Référence :
TM2482149_12
Prix du projet : Maison avec Terrain
prix 310 000 €
- 5 pièces
- 4 chambres
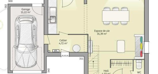
- Surface maison 97 m2
VENTE : maison de 5 pièces (97 m²) à Château-Thierry
MAISON 5 PIÈCES NEUVE
À deux pas du Transilien P (1 h de Paris), votre agence Maisons France Confort Magny-le-Hongre est heureuse de vous proposer en vente à Château-Thierry (02400), cette maison de 5 pièces de 97 m² et de 489 m² de terrain.
Cette maison possède 2 niveaux. Son intérieur inclut quatre chambres, une cuisine et deux salles de bains. La maison est neuve.
On trouve des écoles du primaire et du secondaire à moins de 10 minutes à pied. Niveau transports, il y a la gare Château-Thierry à quelques pas du bien. On trouve un accès à l'autoroute A4 à 4 km. On trouve des commerces, des épiceries, deux supérettes, des boucheries-charcuteries et un bureau de poste à proximité de la maison.
Elle est à vendre pour la somme de 310 000 €.
N'hésitez pas à prendre contact avec notre agence (MELES Teddy : 06-17-56-83-36) pour obtenir de plus amples renseignements sur cette propriété, sur les démarches à suivre ou sur les modalités de vente. Maisons France Confort Magny-le-Hongre vous accompagne dans tous vos projets immobiliers et à toutes les étapes de l'achat.
Annonce proposée par un Agent Commercial Partenaire.
Mentions légales
Terrain proposé par un partenaire foncier selon disponibilités et autorisation de publicité au prix de 68 000 €. Hors droit d'enregistrement et frais de notaire. Terrain + Maison proposés au prix de 310 000 € (Hors branchements et raccordements, papiers peints, peintures, revêtement de sol dans les chambres. Tarif modifiable sans préavis). Etiquette énergie : A. Différents modèles disponibles pour ce terrain. Assurances et garanties du constructeur (RC professionnelle, décennale, dommage ouvrage, garantie de remboursement de l'acompte, livraison à prix et délai convenu) : https://www.maisons-france-confort.fr/mentions-legales/. HEXAOM Services est enregistré auprès de l'ORIAS en tant que Courtier en financement, Niveau 1, sous le numéro 14001345.Agence Maisons France Confort de Magny-le-Hongre (77700)
- Téléphone :
- 01 84 80 92 96
- Adressse :
- 11 rue de Courtalin
77700 Magny-le-Hongre, France
