Maison neuve à
Château-Thierry
(02400) Référence :
TM2482230_59
Prix du projet : Maison avec Terrain
prix 380 000 €
- 4 pièces
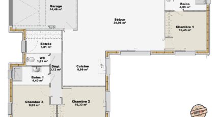
- 3 chambres
- Surface maison 94 m2
Maison de 4 pièces (94 m²) à vendre à Château-Thierry
MAISON 4 PIÈCES NEUVE
À vendre : à 980 m de la gare (Paris à 1 h par le Transilien P), nous sommes heureux de vous présenter à Château-Thierry (02400), cette maison de 4 pièces de plain-pied de 94 m².
Conçue de plain-pied, elle compte trois chambres, une cuisine et deux salles de bains. Cette maison est neuve.
Le terrain de la propriété est de 200 m².
Des écoles (de la maternelle au lycée) sont implantées à moins de 10 minutes à pied. Côté transports, on trouve la gare Château-Thierry dans les environs. Il y a un accès à l'autoroute A4 à 4 km. Il y a des commerces, des épiceries, des boucheries-charcuteries, deux supérettes et un bureau de poste à proximité.
Son prix de vente est de 380 000 €.
Prenez contact avec Teddy MELES (06-17-56-83-36) pour obtenir de plus amples informations sur cette maison et sur les modalités de vente. Maisons France Confort Magny-le-Hongre vous accompagne dans toutes vos démarches et à toutes les étapes de l'achat.
Annonce proposée par un Agent Commercial Partenaire.
Mentions légales
Terrain proposé par un partenaire foncier selon disponibilités et autorisation de publicité au prix de 68 000 €. Hors droit d'enregistrement et frais de notaire. Terrain + Maison proposés au prix de 380 000 € (Hors branchements et raccordements, papiers peints, peintures, revêtement de sol dans les chambres. Tarif modifiable sans préavis). Etiquette énergie : A. Différents modèles disponibles pour ce terrain. Assurances et garanties du constructeur (RC professionnelle, décennale, dommage ouvrage, garantie de remboursement de l'acompte, livraison à prix et délai convenu) : https://www.maisons-france-confort.fr/mentions-legales/. HEXAOM Services est enregistré auprès de l'ORIAS en tant que Courtier en financement, Niveau 1, sous le numéro 14001345.Agence Maisons France Confort de Magny-le-Hongre (77700)
- Téléphone :
- 01 84 80 92 96
- Adressse :
- 11 rue de Courtalin
77700 Magny-le-Hongre, France
