Terrain à bâtir à
Miserey
(27930) Référence :
MB2391402
Prix du projet : Terrain
prix 60 000 €
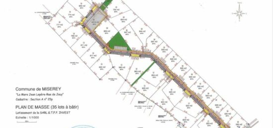
- Surface terrain 500 m2
Miserey : terrain de 500 m² en vente
EMPLACEMENT PRIVILÉGIÉ - PROCHE D'ÉVREUX
Terrain de 500 m² à vendre à 8 km d'Évreux. Ce terrain se situe bénéficiant d'un emplacement privilégié dans Miserey (27930). Ce terrain, avec vue sur rue, est orienté au sud-est. Dans un quartier convoité, ce terrain est proche des commerces et des écoles. Il y a une école primaire dans le quartier. Côté transports en commun, on trouve la gare Évreux Normandie à moins de 10 minutes en voiture. Les nationales N13 et N154 sont accessibles à moins de 6 km. Il y a un commerce à quelques minutes à peine.
Il est proposé à l'achat pour 60 000 €. N'hésitez pas à prendre contact avec Mickael BESNARD (06-15-50-56-87) pour tout renseignement sur ce terrain.
Annonce proposée par un Agent Commercial Partenaire.
Mentions légales
Terrain proposé par un partenaire foncier selon disponibilités et autorisation de publicité et sélectionné par le constructeur en vue de construire une maison neuve avec un contrat de construction de maison individuelle, dans le cadre de la loi du 10/12/1990. Assurances et garanties du constructeur (RC professionnelle, décennale, dommage ouvrage, garantie de remboursement de l'acompte, livraison à prix et délai convenu) : https://www.maisons-france-confort.fr/mentions-legales/. HEXAOM Services est enregistré auprès de l'ORIAS en tant que Courtier en financement, Niveau 1, sous le numéro 14001345.Agence Maisons France Confort de Vernon (27200)
- Téléphone :
- 02 32 51 45 05
- Adressse :
- 38 rue Carnot
27200 Vernon, France
