Maison neuve à
Acy-en-Multien (60620) Référence : CY2432881_1

Prix du projet : Maison avec Terrain

prix 268 000 €

  • 5 pièces
  • 3 chambres
  • Surface maison 90 m2

VENTE : maison de 5 pièces (90 m²) à Acy-en-Multien
MAISON 5 PIÈCES NEUVE - PROCHE DE MEAUX
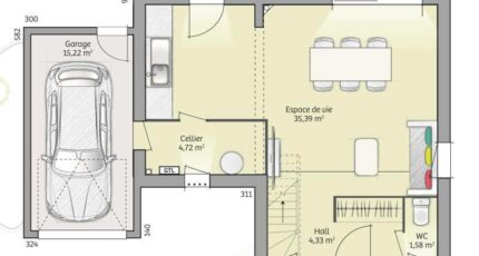
Proche du Transilien P (gare de Crouy-sur-Ourcq, 55 min de Paris), nous vous présentons cette maison de 5 pièces de 90 m² à vendre à Acy-en-Multien (60620). Son intérieur comporte trois chambres, une cuisine et une salle de bains.
Le terrain de la propriété est de 501 m².
Il s'agit d'une maison de 2 niveaux. Elle est neuve.
Une école maternelle est implantée dans le quartier. Niveau transports en commun, on trouve les gares Crouy-sur-Ourcq et Mareuil-sur-Ourcq à moins de 10 minutes en voiture. On trouve un accès à la nationale N2 à 10 km et Meaux se situe à 17 km. Il y a une bibliothèque dans les environs.
Elle est proposée à l'achat pour 268 000 €.
N'hésitez pas à prendre contact avec Cedric YAHIAOUI (tél : 06-66-57-00-63) pour toute question sur la maison ou sur les modalités de vente. Maisons France Confort Magny-le-Hongre est là pour vous accompagner dans toutes vos démarches.

Annonce proposée par un Agent Commercial Partenaire.

Mentions légales

Terrain proposé par un partenaire foncier selon disponibilités et autorisation de publicité au prix de 108 000 €. Hors droit d'enregistrement et frais de notaire. Terrain + Maison proposés au prix de 268 000 € (Hors branchements et raccordements, papiers peints, peintures, revêtement de sol dans les chambres. Tarif modifiable sans préavis). Etiquette énergie : A. Différents modèles disponibles pour ce terrain. Assurances et garanties du constructeur (RC professionnelle, décennale, dommage ouvrage, garantie de remboursement de l'acompte, livraison à prix et délai convenu) : https://www.maisons-france-confort.fr/mentions-legales/. HEXAOM Services est enregistré auprès de l'ORIAS en tant que Courtier en financement, Niveau 1, sous le numéro 14001345.

Contactez l'agence de Magny-le-Hongre

01 84 80 92 96

    * Champs obligatoires

    Vos informations sont traitées par HEXAOM et transmises à un conseiller commercial qui vous contactera afin de répondre à votre demande. Les plans et images présentés sur notre site sont la propriété d’HEXAOM et ne peuvent pas être reproduits sans son accord. Pour retrouver notre politique de protection des données personnelles et exercer vos droits conformément à la « loi informatique et liberté » cliquez-ici.