Maison neuve à
Acy-en-Multien
(60620) Référence :
CY2459273_1
Prix du projet : Maison avec Terrain
prix 314 000 €
- 5 pièces
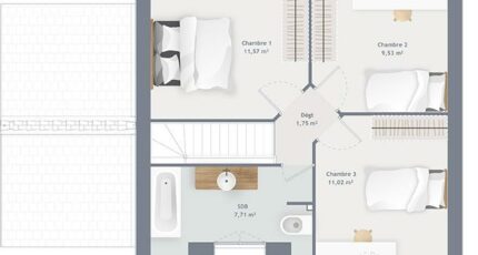
- 3 chambres
- Surface maison 80 m2
Maison F5 (80 m²) en vente à Acy-en-Multien
IDÉALEMENT SITUÉE - MAISON 5 PIÈCES NEUVE
En vente : à proximité de la gare de Crouy-sur-Ourcq (Paris à 55 min par le Transilien P), nous sommes heureux de vous proposer cette maison de 5 pièces de 80 m² idéalement située dans Acy-en-Multien (60620).
Cette maison possède 2 niveaux. Elle propose trois chambres, une cuisine et une salle de bains. Cette maison est neuve.
Le terrain de la propriété est de 773 m².
Cette maison se trouve dans un quartier convoité. On y trouve une école maternelle. Niveau transports, il y a les gares Crouy-sur-Ourcq et Mareuil-sur-Ourcq à moins de 10 minutes en voiture. La nationale N2 est accessible à 10 km et Meaux est située à 17 km. On trouve une bibliothèque à proximité.
Elle est à vendre pour la somme de 314 000 €.
Contactez notre agence (Cedric YAHIAOUI : 06-66-57-00-63) pour tout renseignement sur la maison.
Annonce proposée par un Agent Commercial Partenaire.
Mentions légales
Terrain proposé par un partenaire foncier selon disponibilités et autorisation de publicité au prix de 124 000 €. Hors droit d'enregistrement et frais de notaire. Terrain + Maison proposés au prix de 314 000 € (Hors branchements et raccordements, papiers peints, peintures, revêtement de sol dans les chambres. Tarif modifiable sans préavis). Etiquette énergie : A. Différents modèles disponibles pour ce terrain. Assurances et garanties du constructeur (RC professionnelle, décennale, dommage ouvrage, garantie de remboursement de l'acompte, livraison à prix et délai convenu) : https://www.maisons-france-confort.fr/mentions-legales/. HEXAOM Services est enregistré auprès de l'ORIAS en tant que Courtier en financement, Niveau 1, sous le numéro 14001345.Agence Maisons France Confort de Mareuil-lès-Meaux (77100)
- Téléphone :
- 01 60 09 28 30
- Adressse :
- Domexpo Est Village La Hayette
77100 Mareuil-lès-Meaux, France
