Maison neuve à
Agy
(14400) Référence :
JS2484768_2
Prix du projet : Maison avec Terrain
prix 227 200 €
- 7 pièces
- 5 chambres
- Surface maison 102 m2
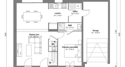
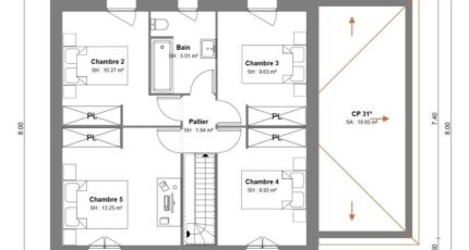
VENTE d'une maison F7 (102 m²) à Agy
IDÉALEMENT SITUÉE - MAISON 7 PIÈCES NEUVE
En vente à quelques kilomètres de Caen, Maisons France Confort Bayeux vous présente cette maison de 7 pièces de 102 m² et de 463 m² de terrain idéalement située dans Agy (14400). Elle propose cinq chambres, une cuisine et deux salles de bains.
C'est une maison de 2 niveaux. Elle est neuve.
Cette maison se trouve dans un secteur recherché. Des écoles de tous types sont implantées à moins de 10 minutes en voiture, tout comme deux structures d'accueil pour la petite enfance à moins de 10 minutes à pied. Niveau transports, il y a deux gares (Bayeux et Le Molay-Littry) à moins de 10 minutes en voiture. La nationale N13 est accessible à 4 km. On trouve quatre bibliothèques, des tennis, un bowling, des commerces, une poissonnerie, des boucheries-charcuteries, deux supérettes et deux bureaux de poste dans les environs. Enfin, 3 marchés animent le quartier.
Elle est proposée à l'achat pour 227 200 €.
Contactez notre agence (HUE Emilie : 06-29-81-46-66) pour toute information sur la maison, sur les démarches à suivre ou sur les modalités de vente. Maisons France Confort Bayeux vous accompagne dans tous vos projets immobiliers et à toutes les étapes de l'achat.
Annonce proposée par un Agent Commercial Partenaire.
Mentions légales
Terrain proposé par un partenaire foncier selon disponibilités et autorisation de publicité au prix de 57 200 €. Hors droit d'enregistrement et frais de notaire. Terrain + Maison proposés au prix de 227 200 € (Hors branchements et raccordements, papiers peints, peintures, revêtement de sol dans les chambres. Tarif modifiable sans préavis). Etiquette énergie : A. Différents modèles disponibles pour ce terrain. Assurances et garanties du constructeur (RC professionnelle, décennale, dommage ouvrage, garantie de remboursement de l'acompte, livraison à prix et délai convenu) : https://www.maisons-france-confort.fr/mentions-legales/. HEXAOM Services est enregistré auprès de l'ORIAS en tant que Courtier en financement, Niveau 1, sous le numéro 14001345.Agence Maisons France Confort de Bayeux (14400)
- Téléphone :
- 02 31 51 20 91
- Adressse :
- 2, rue Saint Loup
14400 Bayeux, France
