Maison neuve à
Arsy
(60190) Référence :
CY2467505_1
Prix du projet : Maison avec Terrain
prix 272 900 €
- 5 pièces
- 3 chambres
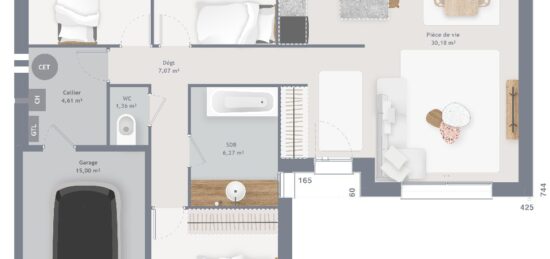
- Surface maison 80 m2
Arsy : maison F5 (80 m²) en vente
IDÉALEMENT SITUÉE - MAISON 5 PIÈCES NEUVE
À deux pas de Compiègne, Maisons France Confort Mareuil-lès-Meaux vous propose en vente, idéalement située dans Arsy (60190), cette maison de 5 pièces de 80 m².
Il s'agit d'une maison de 2 niveaux. Elle compte trois chambres, une cuisine et une salle de bains. La maison est neuve.
Le terrain du bien est de 432 m².
Cette maison se situe dans un quartier recherché. L'École Primaire Séraphine Louis se trouve à moins de 10 minutes à pied. Niveau transports en commun, il y a six gares à moins de 10 minutes en voiture. L'autoroute A1 et la nationale N31 sont accessibles à moins de 2 km. On trouve une bibliothèque à proximité.
Elle est à vendre pour la somme de 272 900 €.
N'hésitez pas à prendre contact avec Cedric YAHIAOUI (06-66-57-00-63) pour obtenir de plus amples informations sur la maison.
Annonce proposée par un Agent Commercial Partenaire.
Mentions légales
Terrain proposé par un partenaire foncier selon disponibilités et autorisation de publicité au prix de 82 900 €. Hors droit d'enregistrement et frais de notaire. Terrain + Maison proposés au prix de 272 900 € (Hors branchements et raccordements, papiers peints, peintures, revêtement de sol dans les chambres. Tarif modifiable sans préavis). Etiquette énergie : A. Différents modèles disponibles pour ce terrain. Assurances et garanties du constructeur (RC professionnelle, décennale, dommage ouvrage, garantie de remboursement de l'acompte, livraison à prix et délai convenu) : https://www.maisons-france-confort.fr/mentions-legales/. HEXAOM Services est enregistré auprès de l'ORIAS en tant que Courtier en financement, Niveau 1, sous le numéro 14001345.Agence Maisons France Confort de Mareuil-lès-Meaux (77100)
- Téléphone :
- 01 60 09 28 30
- Adressse :
- Domexpo Est Village La Hayette
77100 Mareuil-lès-Meaux, France