Maison neuve à
Bayeux (14400) Référence : JS2484778_1

Prix du projet : Maison avec Terrain

prix 226 000 €

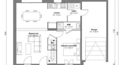
  • 7 pièces
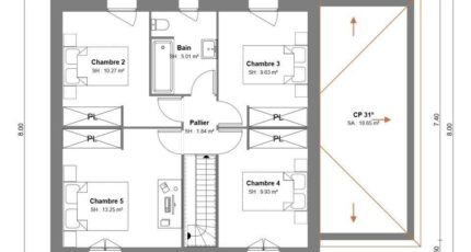
  • 5 chambres
  • Surface maison 102 m2

VENTE d'une maison de 7 pièces (102 m²) à Bayeux
IDÉALEMENT SITUÉE - MAISON 7 PIÈCES NEUVE
À 26 km de Caen, laissez vous charmer par cette maison de 7 pièces de 102 m² en vente idéalement située dans Bayeux (14400). Elle dispose de cinq chambres, d'une cuisine et de deux salles de bains.
Le terrain de la maison s'étend sur 303 m².
Cette maison possède 2 niveaux. Elle est neuve.
Cette maison se trouve dans un quartier convoité. Des établissements scolaires du primaire et du secondaire sont implantés à moins de 10 minutes à pied, tout comme une structure d'accueil pour les enfants en bas âge. Niveau transports en commun, on trouve la gare Bayeux juste à côté. On trouve un accès à la nationale N13 à 3 km. Il y a une bibliothèque, des commerces, une épicerie, des boucheries-charcuteries, un bureau de poste et deux supérettes à proximité du bien. 2 marchés animent le quartier.
Son prix de vente est de 226 000 €.
Contactez Emilie HUE (06-29-81-46-66) pour plus d'informations sur la propriété ou sur les modalités de vente. Faites de vos projets immobiliers une réalité avec Maisons France Confort Bayeux.

Annonce proposée par un Agent Commercial Partenaire.

Mentions légales

Terrain proposé par un partenaire foncier selon disponibilités et autorisation de publicité au prix de 56 000 €. Hors droit d'enregistrement et frais de notaire. Terrain + Maison proposés au prix de 226 000 € (Hors branchements et raccordements, papiers peints, peintures, revêtement de sol dans les chambres. Tarif modifiable sans préavis). Etiquette énergie : A. Différents modèles disponibles pour ce terrain. Assurances et garanties du constructeur (RC professionnelle, décennale, dommage ouvrage, garantie de remboursement de l'acompte, livraison à prix et délai convenu) : https://www.maisons-france-confort.fr/mentions-legales/. HEXAOM Services est enregistré auprès de l'ORIAS en tant que Courtier en financement, Niveau 1, sous le numéro 14001345.

Contactez l'agence de Bayeux

02 31 51 20 91

    * Champs obligatoires

    Vos informations sont traitées par HEXAOM et transmises à un conseiller commercial qui vous contactera afin de répondre à votre demande. Les plans et images présentés sur notre site sont la propriété d’HEXAOM et ne peuvent pas être reproduits sans son accord. Pour retrouver notre politique de protection des données personnelles et exercer vos droits conformément à la « loi informatique et liberté » cliquez-ici.