Maison neuve à
Saint-Vigor-le-Grand (14400) Référence : JS2485040_1

Prix du projet : Maison avec Terrain

prix 230 700 €

  • 7 pièces
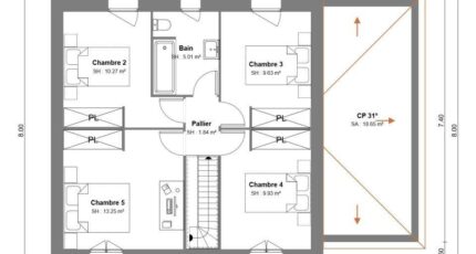
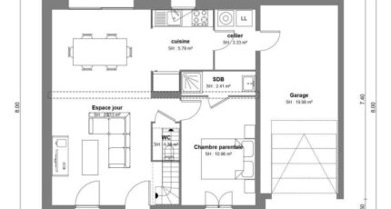
  • 5 chambres
  • Surface maison 102 m2

VENTE d'une maison de 7 pièces (102 m²) à Saint-Vigor-le-Grand
IDÉALEMENT SITUÉE - MAISON 7 PIÈCES NEUVE
À vendre à 25 km de Caen, nous sommes ravis de vous présenter cette maison de 7 pièces de 102 m² idéalement située dans Saint-Vigor-le-Grand (14400).
Cette maison comporte 2 niveaux. Son intérieur offre cinq chambres, une cuisine et deux salles de bains. Cette maison est neuve.
Le terrain du bien est de 328 m².
La maison se situe dans un secteur recherché. On y trouve une école primaire ainsi qu'une structure d'accueil pour la petite enfance. Côté transports en commun, on trouve les gares Bayeux et Audrieu à moins de 10 minutes en voiture. Il y a un accès à la nationale N13 à 4 km. Il y a de nombreux commerces, une supérette et trois boucheries-charcuteries à quelques minutes. Ne manquez pas le marché Rue Saint Jean tous les mercredis matin.
Elle est à vendre pour la somme de 230 700 €.
Prenez contact avec notre agence (HUE Emilie : 06-29-81-46-66) pour toute information sur la maison et sur les démarches à suivre. Maisons France Confort Bayeux vous accompagne dans tous vos projets immobiliers et dans toutes vos démarches.

Annonce proposée par un Agent Commercial Partenaire.

Mentions légales

Terrain proposé par un partenaire foncier selon disponibilités et autorisation de publicité au prix de 60 700 €. Hors droit d'enregistrement et frais de notaire. Terrain + Maison proposés au prix de 230 700 € (Hors branchements et raccordements, papiers peints, peintures, revêtement de sol dans les chambres. Tarif modifiable sans préavis). Etiquette énergie : A. Différents modèles disponibles pour ce terrain. Assurances et garanties du constructeur (RC professionnelle, décennale, dommage ouvrage, garantie de remboursement de l'acompte, livraison à prix et délai convenu) : https://www.maisons-france-confort.fr/mentions-legales/. HEXAOM Services est enregistré auprès de l'ORIAS en tant que Courtier en financement, Niveau 1, sous le numéro 14001345.

Contactez l'agence de Bayeux

02 31 51 20 91

    * Champs obligatoires

    Vos informations sont traitées par HEXAOM et transmises à un conseiller commercial qui vous contactera afin de répondre à votre demande. Les plans et images présentés sur notre site sont la propriété d’HEXAOM et ne peuvent pas être reproduits sans son accord. Pour retrouver notre politique de protection des données personnelles et exercer vos droits conformément à la « loi informatique et liberté » cliquez-ici.