Maison neuve à
Saint-Vigor-le-Grand (14400) Référence : JS2485073_1

Prix du projet : Maison avec Terrain

prix 260 000 €

  • 7 pièces
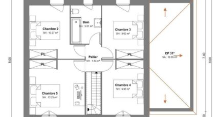
  • 5 chambres
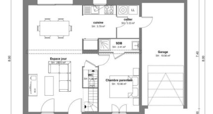
  • Surface maison 102 m2

VENTE d'une maison F7 (102 m²) à Saint-Vigor-le-Grand
IDÉALEMENT SITUÉE - MAISON 7 PIÈCES NEUVE
En vente : à deux pas de Caen, nous sommes ravis de vous proposer cette maison de 7 pièces de 102 m² et de 450 m² de terrain idéalement située dans Saint-Vigor-le-Grand (14400).
C'est une maison de 2 niveaux. Son intérieur compte cinq chambres, une cuisine et deux salles de bains. La maison est neuve.
Cette maison est située dans un secteur convoité. On y trouve une école primaire ainsi qu'une crèche. Côté transports, il y a deux gares (Bayeux et Audrieu) à moins de 10 minutes en voiture. Il y a un accès à la nationale N13 à 4 km. On trouve de nombreux commerces, trois boucheries-charcuteries et une supérette à proximité. Enfin, le marché Rue Saint Jean anime le quartier tous les mercredis matin.
Elle est proposée à l'achat pour 260 000 €.
Contactez notre agence (HUE Emilie : 06-29-81-46-66) pour toute information sur le bien ou sur les démarches à suivre.

Annonce proposée par un Agent Commercial Partenaire.

Mentions légales

Terrain proposé par un partenaire foncier selon disponibilités et autorisation de publicité au prix de 90 000 €. Hors droit d'enregistrement et frais de notaire. Terrain + Maison proposés au prix de 260 000 € (Hors branchements et raccordements, papiers peints, peintures, revêtement de sol dans les chambres. Tarif modifiable sans préavis). Etiquette énergie : A. Différents modèles disponibles pour ce terrain. Assurances et garanties du constructeur (RC professionnelle, décennale, dommage ouvrage, garantie de remboursement de l'acompte, livraison à prix et délai convenu) : https://www.maisons-france-confort.fr/mentions-legales/. HEXAOM Services est enregistré auprès de l'ORIAS en tant que Courtier en financement, Niveau 1, sous le numéro 14001345.

Contactez l'agence de Bayeux

02 31 51 20 91

    * Champs obligatoires

    Vos informations sont traitées par HEXAOM et transmises à un conseiller commercial qui vous contactera afin de répondre à votre demande. Les plans et images présentés sur notre site sont la propriété d’HEXAOM et ne peuvent pas être reproduits sans son accord. Pour retrouver notre politique de protection des données personnelles et exercer vos droits conformément à la « loi informatique et liberté » cliquez-ici.