Maison neuve à
Bayeux (14400) Référence : JS2484778_4

Prix du projet : Maison avec Terrain

prix 246 000 €

  • 7 pièces
  • 5 chambres
  • Surface maison 124 m2

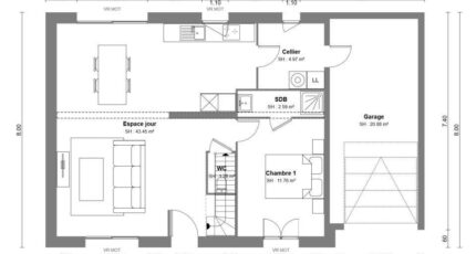
MAISON NEUVE 124 m² - EMPLACEMENT IDÉAL À BAYEUX

PRÉSENTATION DU BIEN

À Bayeux, découvrez ce projet de maison neuve de 124 m² sur un terrain de 303 m², situé dans un environnement agréable.

Répartie sur 2 niveaux, elle offre 5 chambres, 3 salles de bains et une cuisine à aménager selon vos envies.

Un espace idéal pour accueillir toute la famille avec une organisation fluide et fonctionnelle.

Le terrain de 303 m² vous permet de profiter d'un extérieur confortable pour vos aménagements.

ENVIRONNEMENT

Située à environ 26 km de Caen, Bayeux bénéficie d'un emplacement pratique et recherché.

La gare de Bayeux est accessible à pied en moins de 15 minutes, facilitant vos déplacements.

Écoles, collège, lycée et commerces se trouvent à proximité immédiate pour un quotidien simple et agréable.

Accès rapide à la N13 à environ 3 km.

Prix : 246 000 €
Contact : Emilie HUE - Maisons France Confort Bayeux
📞 06 29 81 46 66
Concrétisez votre projet de construction à Bayeux dès maintenant.

Annonce proposée par un Agent Commercial Partenaire.

Mentions légales

Terrain proposé par un partenaire foncier selon disponibilités et autorisation de publicité au prix de 56 000 €. Hors droit d'enregistrement et frais de notaire. Terrain + Maison proposés au prix de 246 000 € (Hors branchements et raccordements, papiers peints, peintures, revêtement de sol dans les chambres. Tarif modifiable sans préavis). Etiquette énergie : A. Différents modèles disponibles pour ce terrain. Assurances et garanties du constructeur (RC professionnelle, décennale, dommage ouvrage, garantie de remboursement de l'acompte, livraison à prix et délai convenu) : https://www.maisons-france-confort.fr/mentions-legales/. HEXAOM Services est enregistré auprès de l'ORIAS en tant que Courtier en financement, Niveau 1, sous le numéro 14001345.

Contactez l'agence de Bayeux

02 31 51 20 91

    * Champs obligatoires

    Vos informations sont traitées par HEXAOM et transmises à un conseiller commercial qui vous contactera afin de répondre à votre demande. Les plans et images présentés sur notre site sont la propriété d’HEXAOM et ne peuvent pas être reproduits sans son accord. Pour retrouver notre politique de protection des données personnelles et exercer vos droits conformément à la « loi informatique et liberté » cliquez-ici.