Maison neuve à
Maisons
(14400) Référence :
JS2484958_3
Prix du projet : Maison avec Terrain
prix 235 400 €
- 7 pièces
- 5 chambres
- Surface maison 102 m2
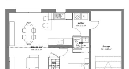
MAISON NEUVE 102 m² - EMPLACEMENT IDÉAL À MAISONS
PRÉSENTATION DU BIEN
À Maisons, découvrez ce projet de maison neuve de 102 m² sur un terrain de 727 m², dans un environnement calme et agréable.
Répartie sur 2 niveaux, elle propose 5 chambres, 2 salles de bains et une cuisine à aménager selon vos besoins.
Un agencement fonctionnel, idéal pour une vie de famille confortable.
Le terrain de 727 m² offre un bel espace extérieur pour vos projets : jardin, terrasse ou aménagements divers.
ENVIRONNEMENT
Située à moins de 5 km de la mer, la commune bénéficie d'un cadre de vie pratique et agréable.
La N13 est accessible à 3 km et la gare de Bayeux à environ 6 km, facilitant les déplacements.
Un terrain de tennis se trouve à proximité immédiate, ainsi que des commerces dans les communes voisines.
NOUS CONTACTER
Prix : 235 400 €
Contact : Emilie HUE - Maisons France Confort Bayeux
📞 06 29 81 46 66
Réalisez votre projet de construction à Maisons dès maintenant.
Annonce proposée par un Agent Commercial Partenaire.
Mentions légales
Terrain proposé par un partenaire foncier selon disponibilités et autorisation de publicité au prix de 65 400 €. Hors droit d'enregistrement et frais de notaire. Terrain + Maison proposés au prix de 235 400 € (Hors branchements et raccordements, papiers peints, peintures, revêtement de sol dans les chambres. Tarif modifiable sans préavis). Etiquette énergie : A. Différents modèles disponibles pour ce terrain. Assurances et garanties du constructeur (RC professionnelle, décennale, dommage ouvrage, garantie de remboursement de l'acompte, livraison à prix et délai convenu) : https://www.maisons-france-confort.fr/mentions-legales/. HEXAOM Services est enregistré auprès de l'ORIAS en tant que Courtier en financement, Niveau 1, sous le numéro 14001345.Agence Maisons France Confort de Bayeux (14400)
- Téléphone :
- 02 31 51 20 91
- Adressse :
- 2, rue Saint Loup
14400 Bayeux, France
