Maison neuve à
Port-en-Bessin-Huppain
(14520) Référence :
JS2485006_4
Prix du projet : Maison avec Terrain
prix 271 600 €
- 7 pièces
- 5 chambres
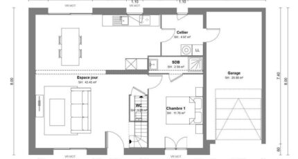
- Surface maison 124 m2
MAISON NEUVE IDÉALEMENT SITUÉE À PORT-EN-BESSIN-HUPPAIN AVEC 124 M² HABITABLES
PRÉSENTATION DU BIEN
Cette maison neuve à construire se situe à Port-en-Bessin-Huppain, dans un secteur idéalement situé à proximité de la mer. Elle dispose d'une surface habitable de 124 m² sur un terrain de 441 m².
Vous pourrez réaliser une maison conçue sur 2 niveaux avec un étage, offrant ainsi un cadre adapté à vos besoins.
La maison comprend cinq chambres et trois salles de bains, ainsi qu'une cuisine à aménager selon vos envies.
Le terrain de 441 m² vous offre un espace extérieur conséquent pour vos projets.
ENVIRONNEMENT
Port-en-Bessin-Huppain est une commune située à environ 5 km de la mer.
La nationale 13 est accessible à 6 km, facilitant vos déplacements. La gare de Bayeux se trouve à 9 km du bien.
Vous trouverez à proximité une école primaire, la Paul Emile Victor, ainsi que des commerces, un restaurant et une poissonnerie dans un rayon proche.
Cette maison est proposée à la vente au prix de 271 600 euros.
Contactez Maisons France Confort Bayeux pour concrétiser votre projet de construction. Emilie HUE est à votre disposition au 06-29-81-46-66 pour toute information complémentaire et pour organiser une rencontre.
N'attendez plus pour réaliser votre maison dans ce cadre idéal.
Annonce proposée par un Agent Commercial Partenaire.
Mentions légales
Terrain proposé par un partenaire foncier selon disponibilités et autorisation de publicité au prix de 81 600 €. Hors droit d'enregistrement et frais de notaire. Terrain + Maison proposés au prix de 271 600 € (Hors branchements et raccordements, papiers peints, peintures, revêtement de sol dans les chambres. Tarif modifiable sans préavis). Etiquette énergie : A. Différents modèles disponibles pour ce terrain. Assurances et garanties du constructeur (RC professionnelle, décennale, dommage ouvrage, garantie de remboursement de l'acompte, livraison à prix et délai convenu) : https://www.maisons-france-confort.fr/mentions-legales/. HEXAOM Services est enregistré auprès de l'ORIAS en tant que Courtier en financement, Niveau 1, sous le numéro 14001345.Agence Maisons France Confort de Bayeux (14400)
- Téléphone :
- 02 31 51 20 91
- Adressse :
- 2, rue Saint Loup
14400 Bayeux, France
