Maison neuve à
Bennecourt
(78270) Référence :
MB2495479_2
Prix du projet : Maison avec Terrain
prix 269 890 €
- 6 pièces
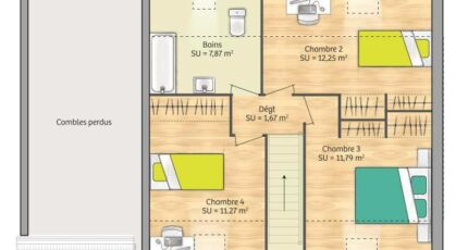
- 4 chambres
- Surface maison 89 m2
MAISON NEUVE À BENNECOURT D'UNE SURFACE DE 89 M² DANS UN SECTEUR RÉSIDENTIEL À PROXIMITÉ DE MANTES-LA-JOLIE.
PRÉSENTATION DU BIEN
Située à Bennecourt, cette maison neuve à construire bénéficie d'un emplacement privilégié. Elle offre une surface habitable de 89 m² implantée sur un terrain de 441 m².
Cette maison propose quatre chambres, une cuisine ainsi qu'une salle de bains avec baignoire, pour un espace de vie total de 89 m². L'aménagement permet de réaliser votre maison adaptée à vos besoins.
Elle s'élève sur deux niveaux, comprenant un étage supplémentaire au-dessus du rez-de-chaussée.
Le terrain de 441 m² apporte un espace extérieur conséquent, idéal pour profiter pleinement du cadre de vie.
ENVIRONNEMENT
Bennecourt se situe dans un secteur résidentiel calme, à proximité de la grande ville de Mantes-la-Jolie, située à 11 km.
Les transports en commun sont nombreux autour du bien, avec plusieurs lignes de bus disponibles à proximité immédiate.
Pour l'éducation, vous trouverez à moins d'un kilomètre un collège, le Collège Privé Saint Louis.
De nombreuses possibilités culturelles et sportives s'offrent également, telles que des restaurants et une bibliothèque accessibles en moins de dix minutes à pied ainsi que des ports de plaisance situés à environ 500 mètres.
Les commerces sont présents aux alentours pour répondre aux besoins quotidiens.
NOUS CONTACTER
Cette maison est proposée à la vente au prix de 269 890 euros, honoraires et charges comprises.
MAISONS FRANCE CONFORT VERNON se tient à votre disposition pour toute demande d'information.
Pour en savoir plus et réaliser votre projet de construction, contactez Mickael BESNARD au 06-15-50-56-87.
Annonce proposée par un Agent Commercial Partenaire.
Mentions légales
Terrain proposé par un partenaire foncier selon disponibilités et autorisation de publicité au prix de 95 000 €. Hors droit d'enregistrement et frais de notaire. Terrain + Maison proposés au prix de 269 890 € (Hors branchements et raccordements, papiers peints, peintures, revêtement de sol dans les chambres. Tarif modifiable sans préavis). Etiquette énergie : A. Différents modèles disponibles pour ce terrain. Assurances et garanties du constructeur (RC professionnelle, décennale, dommage ouvrage, garantie de remboursement de l'acompte, livraison à prix et délai convenu) : https://www.maisons-france-confort.fr/mentions-legales/. HEXAOM Services est enregistré auprès de l'ORIAS en tant que Courtier en financement, Niveau 1, sous le numéro 14001345.Agence Maisons France Confort de Vernon (27200)
- Téléphone :
- 02 32 51 45 05
- Adressse :
- 38 rue Carnot
27200 Vernon, France
