Maison neuve à
Bennecourt (78270) Référence : MB2495479_4

Prix du projet : Maison avec Terrain

prix 269 890 €

  • 6 pièces
  • 4 chambres
  • Surface maison 89 m2

MAISON NEUVE À BENNECOURT D'UNE SURFACE TOTALE DE 89 M² DANS UN EMPLACEMENT PRIVILÉGIÉ.

PRÉSENTATION DU BIEN

Située à Bennecourt, cette maison à construire bénéficie d'un emplacement privilégié. Vous disposerez d'une surface habitable de 89 m² sur un terrain de 441 m².

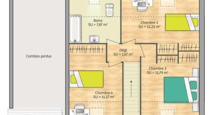
Cette maison offre quatre chambres, une cuisine et une salle de bains avec baignoire, pour une surface habitable totale de 89 m².

La maison s'étend sur deux niveaux.

Vous profiterez d'un terrain de 441 m², offrant un espace extérieur conséquent pour vos projets.

ENVIRONNEMENT

Bennecourt est une commune disposant d'un emplacement privilégié, à proximité de la grande ville de Mantes-la-Jolie, accessible à 11 km. Le secteur est desservi par plusieurs lignes de bus, notamment les lignes 5435, 5477, 5431, 5465, 5432, 5424, 5413 et 5412. Un collège privé, le Collège Privé Saint Louis, se trouve à moins d'un kilomètre à pied. Vous trouverez également des commerces et divers services à proximité, ainsi que des restaurants, une bibliothèque et un port de plaisance à moins de 800 mètres.

NOUS CONTACTER

Cette maison est proposée à la vente au prix de 269 890 euros honoraires compris.

Contactez-nous pour en savoir plus.

Pour toute demande, Mickael BESNARD de l'agence Maisons France Confort Vernon se tient à votre disposition.

Vous pouvez le joindre au 06-15-50-56-87.

Annonce proposée par un Agent Commercial Partenaire.

Mentions légales

Terrain proposé par un partenaire foncier selon disponibilités et autorisation de publicité au prix de 95 000 €. Hors droit d'enregistrement et frais de notaire. Terrain + Maison proposés au prix de 269 890 € (Hors branchements et raccordements, papiers peints, peintures, revêtement de sol dans les chambres. Tarif modifiable sans préavis). Etiquette énergie : A. Différents modèles disponibles pour ce terrain. Assurances et garanties du constructeur (RC professionnelle, décennale, dommage ouvrage, garantie de remboursement de l'acompte, livraison à prix et délai convenu) : https://www.maisons-france-confort.fr/mentions-legales/. HEXAOM Services est enregistré auprès de l'ORIAS en tant que Courtier en financement, Niveau 1, sous le numéro 14001345.

Contactez l'agence de Vernon

02 32 51 45 05

    * Champs obligatoires

    Vos informations sont traitées par HEXAOM et transmises à un conseiller commercial qui vous contactera afin de répondre à votre demande. Les plans et images présentés sur notre site sont la propriété d’HEXAOM et ne peuvent pas être reproduits sans son accord. Pour retrouver notre politique de protection des données personnelles et exercer vos droits conformément à la « loi informatique et liberté » cliquez-ici.