Maison neuve à
Limetz-Villez
(78270) Référence :
MD2389373_4
Prix du projet : Maison avec Terrain
prix 244 177 €
- 6 pièces
- 4 chambres
- Surface maison 91 m2
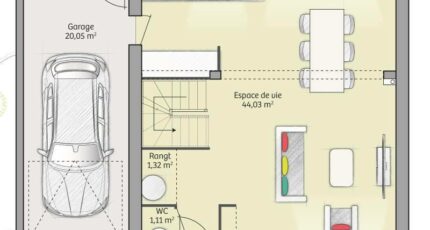
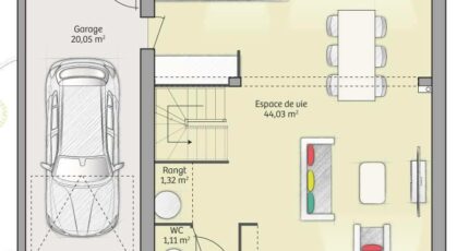
Maison de 6 pièces (91 m²) en vente à Limetz-Villez
QUARTIER RECHERCHÉ - MAISON 6 PIÈCES NEUVE
En vente : à côté du Transilien J (gare de Vernon-Giverny, 1 h de Paris), notre agence Maisons France Confort Vernon est heureuse de vous proposer, située dans un quartier convoité de Limetz-Villez (78270), cette maison de 6 pièces de 91 m² et de 752 m² de terrain. Son intérieur inclut quatre chambres, une cuisine et une salle de bains.
Il s'agit d'une maison de 2 niveaux. Elle est neuve.
Ce bien est situé dans un secteur prisé. On y trouve des établissements scolaires primaires. Niveau transports, on trouve les gares Bonnières-sur-Seine, Vernon-Giverny et Rosny-sur-Seine à moins de 10 minutes en voiture. Il y a une bibliothèque, un tennis, un commerce et deux épiceries à proximité.
Il est à vendre pour la somme de 244 177 €.
N'hésitez pas à prendre contact avec notre agence (Murielle DEBART : 06-29-34-36-28) pour plus de renseignements sur la maison, sur les modalités de vente ou sur les démarches à suivre.
Mentions légales
Terrain proposé par un partenaire foncier selon disponibilités et autorisation de publicité au prix de 95 000 €. Hors droit d'enregistrement et frais de notaire. Terrain + Maison proposés au prix de 244 177 € (Hors branchements et raccordements, papiers peints, peintures, revêtement de sol dans les chambres. Tarif modifiable sans préavis). Etiquette énergie : A. Différents modèles disponibles pour ce terrain. Assurances et garanties du constructeur (RC professionnelle, décennale, dommage ouvrage, garantie de remboursement de l'acompte, livraison à prix et délai convenu) : https://www.maisons-france-confort.fr/mentions-legales/. HEXAOM Services est enregistré auprès de l'ORIAS en tant que Courtier en financement, Niveau 1, sous le numéro 14001345.Agence Maisons France Confort de Vernon (27200)
- Téléphone :
- 02 32 51 45 05
- Adressse :
- 38 rue Carnot
27200 Vernon, France
