Maison neuve à
Beuzeville (27210) Référence : AL2443334_2

Prix du projet : Maison avec Terrain

prix 229 359 €

  • 6 pièces
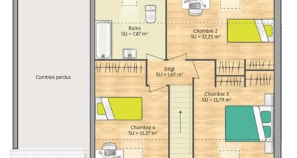
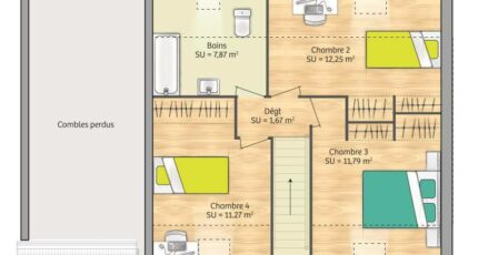
  • 4 chambres
  • Surface maison 89 m2

Beuzeville : maison de 6 pièces (89 m²) en vente
MAISON 6 PIÈCES NEUVE - PROCHE DU HAVRE
À vendre à 11 km de la Manche et à deux pas du Havre, à Beuzeville (27210), votre agence Maisons France Confort Deauville est ravie de vous présenter cette maison de 6 pièces de 89 m² et de 605 m² de terrain. Elle inclut quatre chambres, une cuisine et une salle de bains.
Cette maison compte 2 niveaux. Elle est neuve.
Il y a trois établissements scolaires à moins de 10 minutes à pied,, comme le Collège Jacques Brel ou l'École Élémentaire Pierre Mendès-France et une crèche. Les autoroutes A13 et A29 sont accessibles à moins de 9 km. On trouve un tennis, des boulangeries, des commerces, deux supermarchés, une épicerie et quatre boucheries-charcuteries à quelques minutes de la maison.
Son prix de vente est de 229 359 €.
Prenez contact avec Aurélien LEMONNIER (tél : 06-12-12-45-94) pour tout renseignement sur cette maison ou sur les démarches à suivre. Maisons France Confort Deauville vous accompagne dans tous vos projets immobiliers et dans toutes vos démarches.

Mentions légales

Terrain proposé par un partenaire foncier selon disponibilités et autorisation de publicité au prix de 62 100 €. Hors droit d'enregistrement et frais de notaire. Terrain + Maison proposés au prix de 229 359 € (Hors branchements et raccordements, papiers peints, peintures, revêtement de sol dans les chambres. Tarif modifiable sans préavis). Etiquette énergie : A. Différents modèles disponibles pour ce terrain. Assurances et garanties du constructeur (RC professionnelle, décennale, dommage ouvrage, garantie de remboursement de l'acompte, livraison à prix et délai convenu) : https://www.maisons-france-confort.fr/mentions-legales/. HEXAOM Services est enregistré auprès de l'ORIAS en tant que Courtier en financement, Niveau 1, sous le numéro 14001345.

Contactez l'agence de Deauville

02 31 87 32 01

    * Champs obligatoires

    Vos informations sont traitées par HEXAOM et transmises à un conseiller commercial qui vous contactera afin de répondre à votre demande. Les plans et images présentés sur notre site sont la propriété d’HEXAOM et ne peuvent pas être reproduits sans son accord. Pour retrouver notre politique de protection des données personnelles et exercer vos droits conformément à la « loi informatique et liberté » cliquez-ici.