Maison neuve à
Boulleville
(27210) Référence :
AV2451230_1
Prix du projet : Maison avec Terrain
prix 217 500 €
- 6 pièces
- 4 chambres
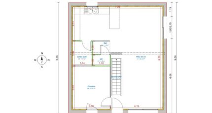
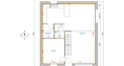
- Surface maison 89 m2
Maison de 89m² habitable
Elle se compose d'une belle pièces de vie ouverte, avec un cellier et une chambre au rdc.
A l'étage 3 chambres et une salle de bain.
Prestations :
Carrelage 45*45
volets roulants encastrée à la maçonnerie + électrique Somfy
Parquet dans les chambres
Pour une étude de votre projet de construction merci de prendre rdv au 06.48.23.57.76 Angélique Vaudry
Mentions légales
Terrain proposé par un partenaire foncier selon disponibilités et autorisation de publicité au prix de 69 500 €. Hors droit d'enregistrement et frais de notaire. Terrain + Maison proposés au prix de 217 500 € (Hors branchements et raccordements, papiers peints, peintures, revêtement de sol dans les chambres. Tarif modifiable sans préavis). Etiquette énergie : A. Différents modèles disponibles pour ce terrain. Assurances et garanties du constructeur (RC professionnelle, décennale, dommage ouvrage, garantie de remboursement de l'acompte, livraison à prix et délai convenu) : https://www.maisons-france-confort.fr/mentions-legales/. HEXAOM Services est enregistré auprès de l'ORIAS en tant que Courtier en financement, Niveau 1, sous le numéro 14001345.Agence Maisons France Confort de Lisieux (14100)
- Téléphone :
- 02 31 62 91 30
- Adressse :
- 41 boulevard Jeanne d'Arc
14100 Lisieux, France
