Maison neuve à
Beuzeville (27210) Référence : AL2443334_4

Prix du projet : Maison avec Terrain

prix 232 702 €

  • 6 pièces
  • 4 chambres
  • Surface maison 91 m2

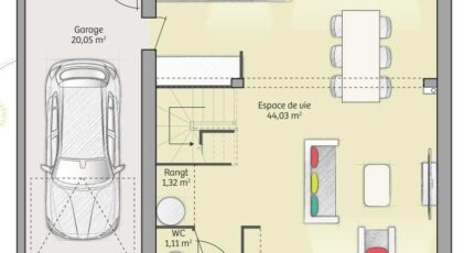
VENTE : maison F6 (91 m²) à Beuzeville
PROCHE DU HAVRE - MAISON 6 PIÈCES NEUVE
À 11 km de la Manche et à deux pas du Havre, notre agence Maisons France Confort Deauville est ravie de vous proposer en vente à Beuzeville (27210), cette maison de 6 pièces de 91 m².
Il s'agit d'une maison de 2 niveaux. Elle est composée de quatre chambres, d'une cuisine et d'une salle de bains. Cette maison est neuve.
Le terrain de la propriété est de 605 m².
On trouve trois établissements scolaires à moins de 10 minutes à pied,, comme le Collège Jacques Brel ou l'École Élémentaire Pierre Mendès-France et une structure d'accueil pour la petite enfance. Les autoroutes A13 et A29 sont accessibles à moins de 9 km. Il y a un tennis, des boulangeries, des commerces, deux supermarchés, une supérette et un bureau de poste à proximité de la maison.
Elle est à vendre pour la somme de 232 702 €.
N'hésitez pas à prendre contact avec Aurélien LEMONNIER (tél : 06-12-12-45-94) pour obtenir de plus amples renseignements sur cette propriété. Maisons France Confort Deauville est là pour vous accompagner à toutes les étapes de l'achat.

Mentions légales

Terrain proposé par un partenaire foncier selon disponibilités et autorisation de publicité au prix de 62 100 €. Hors droit d'enregistrement et frais de notaire. Terrain + Maison proposés au prix de 232 702 € (Hors branchements et raccordements, papiers peints, peintures, revêtement de sol dans les chambres. Tarif modifiable sans préavis). Etiquette énergie : A. Différents modèles disponibles pour ce terrain. Assurances et garanties du constructeur (RC professionnelle, décennale, dommage ouvrage, garantie de remboursement de l'acompte, livraison à prix et délai convenu) : https://www.maisons-france-confort.fr/mentions-legales/. HEXAOM Services est enregistré auprès de l'ORIAS en tant que Courtier en financement, Niveau 1, sous le numéro 14001345.

Contactez l'agence de Deauville

02 31 87 32 01

    * Champs obligatoires

    Vos informations sont traitées par HEXAOM et transmises à un conseiller commercial qui vous contactera afin de répondre à votre demande. Les plans et images présentés sur notre site sont la propriété d’HEXAOM et ne peuvent pas être reproduits sans son accord. Pour retrouver notre politique de protection des données personnelles et exercer vos droits conformément à la « loi informatique et liberté » cliquez-ici.