Maison neuve à
Boussy-Saint-Antoine
(91800) Référence :
AD2478615_2
Prix du projet : Maison avec Terrain
prix 324 000 €
- 5 pièces
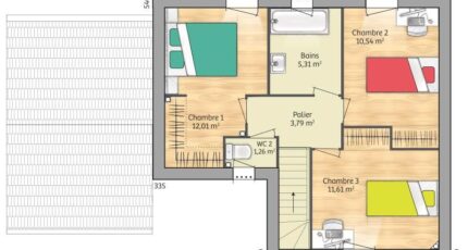
- 3 chambres
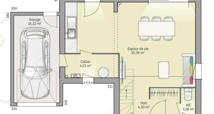
- Surface maison 90 m2
VENTE d'une maison de 5 pièces (90 m²) à Boussy-Saint-Antoine
IDÉALEMENT SITUÉE - MAISON 5 PIÈCES NEUVE
À 940 m du RER D (30 min de Paris), ayez le coup de coeur pour cette maison de 5 pièces de 90 m² et de 657 m² de terrain idéalement située dans Boussy-Saint-Antoine (91800). Son intérieur se divise en trois chambres, une cuisine et une salle de bains.
Cette maison compte 2 niveaux. Elle est neuve.
La maison se trouve dans un quartier recherché. Il y a plusieurs écoles (maternelle, élémentaire, primaire et collège) à moins de 10 minutes à pied. Côté transports, on trouve la station de RER Boussy-Saint-Antoine (ligne D) ainsi que la gare Boussy-Saint-Antoine dans les alentours. On trouve deux tennis, un bassin de natation, un bowling, des commerces, quatre épiceries, une supérette, un bureau de poste et une boucherie-charcuterie à quelques minutes.
Son prix de vente est de 324 000 €.
N'hésitez pas à prendre contact avec Anne DELOHEN (06-30-93-26-67) pour toute question sur la maison ou sur les démarches à suivre. Donnez vie à vos projets immobiliers avec Maisons France Confort Nemours.
Annonce proposée par un Agent Commercial Partenaire.
Mentions légales
Terrain proposé par un partenaire foncier selon disponibilités et autorisation de publicité au prix de 139 000 €. Hors droit d'enregistrement et frais de notaire. Terrain + Maison proposés au prix de 324 000 € (Hors branchements et raccordements, papiers peints, peintures, revêtement de sol dans les chambres. Tarif modifiable sans préavis). Etiquette énergie : A. Différents modèles disponibles pour ce terrain. Assurances et garanties du constructeur (RC professionnelle, décennale, dommage ouvrage, garantie de remboursement de l'acompte, livraison à prix et délai convenu) : https://www.maisons-france-confort.fr/mentions-legales/. HEXAOM Services est enregistré auprès de l'ORIAS en tant que Courtier en financement, Niveau 1, sous le numéro 14001345.Agence Maisons France Confort de Nemours (77140)
- Téléphone :
- 01 64 28 58 32
- Adressse :
- 16 Avenue Carnot
77140 Nemours, France
