Maison neuve à
Bray-sur-Seine
(77480) Référence :
CY2435536_1
Prix du projet : Maison avec Terrain
prix 217 000 €
- 5 pièces
- 3 chambres
- Surface maison 90 m2
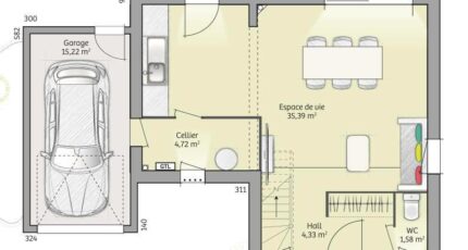
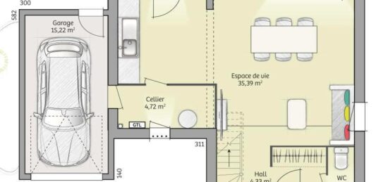
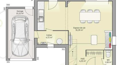
VENTE d'une maison de 5 pièces (90 m²) à Bray-sur-Seine
PROCHE DE SENS - MAISON 5 PIÈCES NEUVE
À deux pas de Sens, laissez vous charmer par à vendre à Bray-sur-Seine (77480), cette maison de 5 pièces de 90 m² et de 480 m² de terrain. Elle se divise en trois chambres, une cuisine et une salle de bains.
Cette maison comporte 2 niveaux. Elle est neuve.
Le Collège Jean Rostand et l'École Primaire Jehan de Brie sont implantés à moins de 10 minutes à pied. On trouve une bibliothèque, un bassin de natation, un tennis, trois boulangeries, des commerces, quatre supermarchés, deux boucheries-charcuteries et un bureau de poste dans les environs. Enfin, le marché Place de la Halle anime le quartier tous les vendredis matin.
Elle est à vendre pour la somme de 217 000 €.
Contactez Cedric YAHIAOUI (tél : 06-66-57-00-63) pour toute question sur la maison ou sur les démarches à suivre.
Annonce proposée par un Agent Commercial Partenaire.
Mentions légales
Terrain proposé par un partenaire foncier selon disponibilités et autorisation de publicité au prix de 57 000 €. Hors droit d'enregistrement et frais de notaire. Terrain + Maison proposés au prix de 217 000 € (Hors branchements et raccordements, papiers peints, peintures, revêtement de sol dans les chambres. Tarif modifiable sans préavis). Etiquette énergie : A. Différents modèles disponibles pour ce terrain. Assurances et garanties du constructeur (RC professionnelle, décennale, dommage ouvrage, garantie de remboursement de l'acompte, livraison à prix et délai convenu) : https://www.maisons-france-confort.fr/mentions-legales/. HEXAOM Services est enregistré auprès de l'ORIAS en tant que Courtier en financement, Niveau 1, sous le numéro 14001345.Agence Maisons France Confort de Magny-le-Hongre (77700)
- Téléphone :
- 01 84 80 92 96
- Adressse :
- 11 rue de Courtalin
77700 Magny-le-Hongre, France
