Maison neuve à
Bretteville-l'Orgueilleuse (14740) Référence : JS2484818_3

Prix du projet : Maison avec Terrain

prix 249 000 €

  • 7 pièces
  • 5 chambres
  • Surface maison 102 m2

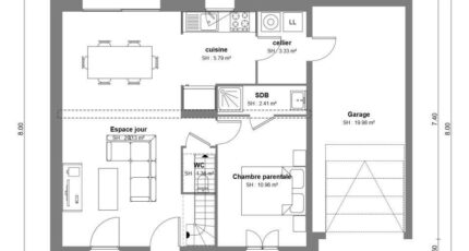
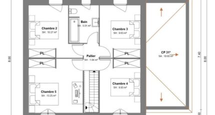
VENTE d'une maison T7 (102 m²) à Bretteville-l'Orgueilleuse
IDÉALEMENT SITUÉE - MAISON 7 PIÈCES NEUVE
En vente : à deux pas de Caen, nous vous proposons, idéalement située dans Bretteville-l'Orgueilleuse (14740), cette maison de 7 pièces de 102 m². Elle propose cinq chambres, une cuisine et deux salles de bains.
Le terrain du bien est de 333 m².
Cette maison possède 2 niveaux. Elle est neuve.
La maison se situe dans un quartier convoité. L'École Maternelle les Lilas et l'École Élémentaire les Coquelicots se trouvent à moins de 10 minutes à pied. Côté transports, il y a la gare Bretteville-Norrey juste à côté. Il y a un accès à la nationale N13 à 1 km. On trouve un tennis, une bibliothèque, quatre commerces, un bureau de poste et une boucherie-charcuterie à proximité.
Elle est proposée à l'achat pour 249 000 €.
Prenez contact avec Emilie HUE (06-29-81-46-66) pour toute information sur la maison ou sur les modalités de vente. Maisons France Confort Bayeux est là pour vous accompagner dans toutes vos démarches.

Annonce proposée par un Agent Commercial Partenaire.

Mentions légales

Terrain proposé par un partenaire foncier selon disponibilités et autorisation de publicité au prix de 79 000 €. Hors droit d'enregistrement et frais de notaire. Terrain + Maison proposés au prix de 249 000 € (Hors branchements et raccordements, papiers peints, peintures, revêtement de sol dans les chambres. Tarif modifiable sans préavis). Etiquette énergie : A. Différents modèles disponibles pour ce terrain. Assurances et garanties du constructeur (RC professionnelle, décennale, dommage ouvrage, garantie de remboursement de l'acompte, livraison à prix et délai convenu) : https://www.maisons-france-confort.fr/mentions-legales/. HEXAOM Services est enregistré auprès de l'ORIAS en tant que Courtier en financement, Niveau 1, sous le numéro 14001345.

Contactez l'agence de Bayeux

02 31 51 20 91

    * Champs obligatoires

    Vos informations sont traitées par HEXAOM et transmises à un conseiller commercial qui vous contactera afin de répondre à votre demande. Les plans et images présentés sur notre site sont la propriété d’HEXAOM et ne peuvent pas être reproduits sans son accord. Pour retrouver notre politique de protection des données personnelles et exercer vos droits conformément à la « loi informatique et liberté » cliquez-ici.