Maison neuve à
Bretteville-l'Orgueilleuse
(14740) Référence :
JS2484818_4
Prix du projet : Maison avec Terrain
prix 249 000 €
- 7 pièces
- 5 chambres
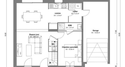
- Surface maison 102 m2
Maison de 7 pièces (102 m²) en vente à Bretteville-l'Orgueilleuse
IDÉALEMENT SITUÉE - MAISON 7 PIÈCES NEUVE
À vendre à deux pas de Caen, nous sommes ravis de vous présenter, idéalement située dans Bretteville-l'Orgueilleuse (14740), cette maison de 7 pièces de 102 m² et de 333 m² de terrain.
C'est une maison de 2 niveaux. Son intérieur compte cinq chambres, une cuisine et deux salles de bains. Cette maison est neuve.
La maison se situe dans un secteur convoité. On trouve l'École Maternelle les Lilas et l'École Élémentaire les Coquelicots à moins de 10 minutes à pied. Côté transports en commun, il y a la gare Bretteville-Norrey dans les environs. La nationale N13 est accessible à 1 km. On trouve un tennis, une bibliothèque, quatre commerces, un bureau de poste et une boucherie-charcuterie à proximité.
Elle est proposée à l'achat pour 249 000 €.
Prenez contact avec Emilie HUE (06-29-81-46-66) pour plus d'informations sur la maison, sur les démarches à suivre ou sur les modalités de vente. Maisons France Confort Bayeux vous accompagne à toutes les étapes de l'achat et dans tous vos projets immobiliers.
Annonce proposée par un Agent Commercial Partenaire.
Mentions légales
Terrain proposé par un partenaire foncier selon disponibilités et autorisation de publicité au prix de 79 000 €. Hors droit d'enregistrement et frais de notaire. Terrain + Maison proposés au prix de 249 000 € (Hors branchements et raccordements, papiers peints, peintures, revêtement de sol dans les chambres. Tarif modifiable sans préavis). Etiquette énergie : A. Différents modèles disponibles pour ce terrain. Assurances et garanties du constructeur (RC professionnelle, décennale, dommage ouvrage, garantie de remboursement de l'acompte, livraison à prix et délai convenu) : https://www.maisons-france-confort.fr/mentions-legales/. HEXAOM Services est enregistré auprès de l'ORIAS en tant que Courtier en financement, Niveau 1, sous le numéro 14001345.Agence Maisons France Confort de Bayeux (14400)
- Téléphone :
- 02 31 51 20 91
- Adressse :
- 2, rue Saint Loup
14400 Bayeux, France
