Maison neuve à
Brie-Comte-Robert
(77170) Référence :
DC2489023_2
Prix du projet : Maison avec Terrain
prix 420 516 €
- 5 pièces
- 3 chambres
- Surface maison 90 m2
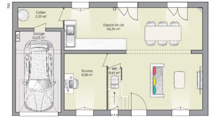
VENTE d'une maison F5 (90 m²) à Brie-Comte-Robert
MAISON 5 PIÈCES NEUVE - PROCHE DE PARIS
À quelques minutes de la station Combs-la-Ville-Quincy du RER D (30 min de Paris), Maisons France Confort Melun vous propose cette maison de 5 pièces de 90 m² en vente à Brie-Comte-Robert (77170).
C'est une maison de 2 niveaux. Elle compte trois chambres, une cuisine et une salle de bains. La maison est neuve.
Le terrain de la propriété est de 400 m².
Cinq établissements scolaires sont implantés à moins de 10 minutes à pied. Niveau transports, on trouve trois lignes de RER (D, E et A) ainsi que sept gares à moins de 10 minutes en voiture. Il y a une bibliothèque, des commerces, un bureau de poste, une boucherie-charcuterie et quatre épiceries dans les environs.
Elle est à vendre pour la somme de 420 516 €.
N'hésitez pas à prendre contact avec David CORDIER (tél : 06-10-79-38-15) pour toute information sur le bien, sur les démarches à suivre ou sur les modalités de vente. Maisons France Confort Melun vous accompagne à toutes les étapes de votre projet et dans tous vos projets immobiliers.
Annonce proposée par un Agent Commercial Partenaire.
Mentions légales
Terrain proposé par un partenaire foncier selon disponibilités et autorisation de publicité au prix de 210 000 €. Hors droit d'enregistrement et frais de notaire. Terrain + Maison proposés au prix de 420 516 € (Hors branchements et raccordements, papiers peints, peintures, revêtement de sol dans les chambres. Tarif modifiable sans préavis). Etiquette énergie : A. Différents modèles disponibles pour ce terrain. Assurances et garanties du constructeur (RC professionnelle, décennale, dommage ouvrage, garantie de remboursement de l'acompte, livraison à prix et délai convenu) : https://www.maisons-france-confort.fr/mentions-legales/. HEXAOM Services est enregistré auprès de l'ORIAS en tant que Courtier en financement, Niveau 1, sous le numéro 14001345.Agence Maisons France Confort de Melun (77000)
- Téléphone :
- 01 64 14 43 20
- Adressse :
- 3 route de Nangis
77000 Melun, France