Maison neuve à
Bueil
(27730) Référence :
MB2393497_2
Prix du projet : Maison avec Terrain
prix 262 349 €
- 6 pièces
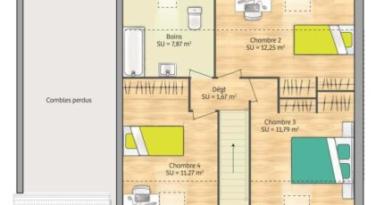
- 4 chambres
- Surface maison 89 m2
VENTE d'une maison F6 (89 m²) à Bueil
EMPLACEMENT PRIVILÉGIÉ - MAISON 6 PIÈCES NEUVE
À vendre : située à quelques kilomètres d'Évreux, Maisons France Confort Vernon vous propose cette maison de 6 pièces de 89 m² et de 402 m² de terrain bénéficiant d'un emplacement privilégié dans Bueil (27730).
Cette maison compte 2 niveaux. Elle dispose de quatre chambres, d'une cuisine et d'une salle de bains. Cette maison est neuve.
Ce bien se situe dans un secteur prisé. Il y a l'École Primaire Paul Delabre à moins de 10 minutes à pied. Côté transports en commun, on trouve la gare Bueil dans les environs. Il y a deux commerces, une boulangerie et un supermarché à proximité de la maison.
Son prix de vente est de 262 349 €.
Contactez notre agence (Mickael BESNARD : 06-15-50-56-87) pour obtenir de plus amples informations sur la maison ou sur les modalités de vente. Maisons France Confort Vernon est là pour vous accompagner à toutes les étapes de votre projet.
Annonce proposée par un Agent Commercial Partenaire.
Mentions légales
Terrain proposé par un partenaire foncier selon disponibilités et autorisation de publicité au prix de 79 900 €. Hors droit d'enregistrement et frais de notaire. Terrain + Maison proposés au prix de 262 349 € (Hors branchements et raccordements, papiers peints, peintures, revêtement de sol dans les chambres. Tarif modifiable sans préavis). Etiquette énergie : A. Différents modèles disponibles pour ce terrain. Assurances et garanties du constructeur (RC professionnelle, décennale, dommage ouvrage, garantie de remboursement de l'acompte, livraison à prix et délai convenu) : https://www.maisons-france-confort.fr/mentions-legales/. HEXAOM Services est enregistré auprès de l'ORIAS en tant que Courtier en financement, Niveau 1, sous le numéro 14001345.Agence Maisons France Confort de Vernon (27200)
- Téléphone :
- 02 32 51 45 05
- Adressse :
- 38 rue Carnot
27200 Vernon, France
