Maison neuve à
Canappeville (27400) Référence : MB2451757_2

Prix du projet : Maison avec Terrain

prix 223 980 €

  • 6 pièces
  • 4 chambres
  • Surface maison 89 m2

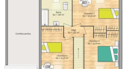
VENTE d'une maison T6 (89 m²) à Canappeville
EMPLACEMENT PRIVILÉGIÉ - MAISON 6 PIÈCES NEUVE
En vente : à 16 km d'Évreux, nous vous présentons cette maison de 6 pièces de 89 m² et de 866 m² de terrain bénéficiant d'un emplacement privilégié dans Canappeville (27400).
Il s'agit d'une maison de 2 niveaux. Son intérieur inclut quatre chambres, une cuisine et une salle de bains. Cette maison est neuve.
Cette maison est située dans un quartier prisé. Une école primaire y est implantée.
Elle est proposée à l'achat pour 223 980 €.
Contactez Mickael BESNARD (tél : 06-15-50-56-87) pour toute information sur la maison ou sur les démarches à suivre. Maisons France Confort Vernon vous accompagne dans tous vos projets immobiliers et dans toutes vos démarches.

Annonce proposée par un Agent Commercial Partenaire.

Mentions légales

Terrain proposé par un partenaire foncier selon disponibilités et autorisation de publicité au prix de 55 000 €. Hors droit d'enregistrement et frais de notaire. Terrain + Maison proposés au prix de 223 980 € (Hors branchements et raccordements, papiers peints, peintures, revêtement de sol dans les chambres. Tarif modifiable sans préavis). Etiquette énergie : A. Différents modèles disponibles pour ce terrain. Assurances et garanties du constructeur (RC professionnelle, décennale, dommage ouvrage, garantie de remboursement de l'acompte, livraison à prix et délai convenu) : https://www.maisons-france-confort.fr/mentions-legales/. HEXAOM Services est enregistré auprès de l'ORIAS en tant que Courtier en financement, Niveau 1, sous le numéro 14001345.

Contactez l'agence de Vernon

02 32 51 45 05

    * Champs obligatoires

    Vos informations sont traitées par HEXAOM et transmises à un conseiller commercial qui vous contactera afin de répondre à votre demande. Les plans et images présentés sur notre site sont la propriété d’HEXAOM et ne peuvent pas être reproduits sans son accord. Pour retrouver notre politique de protection des données personnelles et exercer vos droits conformément à la « loi informatique et liberté » cliquez-ici.