Maison neuve à
Quatremare (27400) Référence : MB2426323_4

Prix du projet : Maison avec Terrain

prix 234 898 €

  • 6 pièces
  • 4 chambres
  • Surface maison 89 m2

VENTE d'une maison F6 (89 m²) à Quatremare
IDÉALEMENT SITUÉE - MAISON 6 PIÈCES NEUVE
À quelques kilomètres de Rouen, en vente idéalement située dans Quatremare (27400), Maisons France Confort Vernon vous propose cette maison de 6 pièces de 89 m².
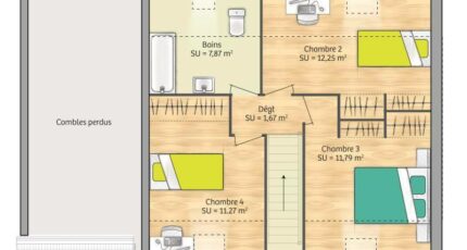
Il s'agit d'une maison de 2 niveaux. Elle se divise en quatre chambres, une cuisine et une salle de bains. La maison est neuve.
Le terrain de la propriété s'étend sur 974 m².
La maison est située dans un quartier prisé. On trouve tous les types d'écoles à moins de 10 minutes en voiture, tout comme quatre crèches à moins de 10 minutes à pied. Les autoroutes A154 et A13 et la nationale N154 sont accessibles à moins de 10 km. Il y a trois bibliothèques, des tennis, un bowling, un bassin de natation, des boulangeries, des commerces, des supermarchés, des épiceries et deux poissonneries à proximité de la maison. Enfin, le marché Centre-Ville a lieu chaque samedi matin.
Elle est proposée à l'achat pour 234 898 €.
Contactez notre agence (BESNARD Mickael : 06-15-50-56-87) pour toute information sur la maison, sur les démarches à suivre et sur les modalités de vente. Maisons France Confort Vernon est là pour vous accompagner à toutes les étapes de votre projet.

Annonce proposée par un Agent Commercial Partenaire.

Mentions légales

Terrain proposé par un partenaire foncier selon disponibilités et autorisation de publicité au prix de 59 500 €. Hors droit d'enregistrement et frais de notaire. Terrain + Maison proposés au prix de 234 898 € (Hors branchements et raccordements, papiers peints, peintures, revêtement de sol dans les chambres. Tarif modifiable sans préavis). Etiquette énergie : A. Différents modèles disponibles pour ce terrain. Assurances et garanties du constructeur (RC professionnelle, décennale, dommage ouvrage, garantie de remboursement de l'acompte, livraison à prix et délai convenu) : https://www.maisons-france-confort.fr/mentions-legales/. HEXAOM Services est enregistré auprès de l'ORIAS en tant que Courtier en financement, Niveau 1, sous le numéro 14001345.

Contactez l'agence de Vernon

02 32 51 45 05

    * Champs obligatoires

    Vos informations sont traitées par HEXAOM et transmises à un conseiller commercial qui vous contactera afin de répondre à votre demande. Les plans et images présentés sur notre site sont la propriété d’HEXAOM et ne peuvent pas être reproduits sans son accord. Pour retrouver notre politique de protection des données personnelles et exercer vos droits conformément à la « loi informatique et liberté » cliquez-ici.