Maison neuve à
La Chapelle-du-Bois-des-Faulx
(27930) Référence :
MB2382364_8
Prix du projet : Maison avec Terrain
prix 217 657 €
- 6 pièces
- 4 chambres
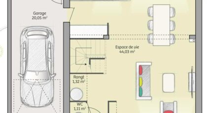
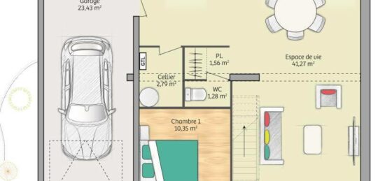
- Surface maison 91 m2
Maison de 6 pièces (91 m²) en vente à La Chapelle-du-Bois-des-Faulx
IDÉALEMENT SITUÉE - MAISON 6 PIÈCES NEUVE
À vendre à quelques kilomètres d'Évreux, nous vous présentons cette maison de 6 pièces de 91 m² et de 383 m² de terrain idéalement située dans La Chapelle-du-Bois-des-Faulx (27930).
Cette maison comporte 2 niveaux. Elle comporte quatre chambres, une cuisine et une salle de bains. Cette maison est neuve.
La maison est située dans un secteur attractif. L'École Élémentaire Jules Ferry se trouve à moins de 10 minutes à pied. Les autoroutes A154 et A13 et les nationales N154 et N13 sont accessibles à moins de 10 km.
Elle est proposée à l'achat pour 217 657 €.
Prenez contact avec notre agence (BESNARD Mickael : 06-15-50-56-87) pour plus d'informations sur la propriété, sur les démarches à suivre ou sur les modalités de vente. Maisons France Confort Vernon vous accompagne à toutes les étapes de l'achat et dans tous vos projets immobiliers.
Annonce proposée par un Agent Commercial Partenaire.
Mentions légales
Terrain proposé par un partenaire foncier selon disponibilités et autorisation de publicité au prix de 40 000 €. Hors droit d'enregistrement et frais de notaire. Terrain + Maison proposés au prix de 217 657 € (Hors branchements et raccordements, papiers peints, peintures, revêtement de sol dans les chambres. Tarif modifiable sans préavis). Etiquette énergie : A. Différents modèles disponibles pour ce terrain. Assurances et garanties du constructeur (RC professionnelle, décennale, dommage ouvrage, garantie de remboursement de l'acompte, livraison à prix et délai convenu) : https://www.maisons-france-confort.fr/mentions-legales/. HEXAOM Services est enregistré auprès de l'ORIAS en tant que Courtier en financement, Niveau 1, sous le numéro 14001345.Agence Maisons France Confort de Vernon (27200)
- Téléphone :
- 02 32 51 45 05
- Adressse :
- 38 rue Carnot
27200 Vernon, France
