Maison neuve à
Caveirac
(30820) Référence :
NM2404788_1
Prix du projet : Maison avec Terrain
prix 317 000 €
- 5 pièces
- 3 chambres
- Surface maison 92 m2
Projet TERRAIN + MAISON personnalisable sur CAVEIRAC, idéalement situé dans le village.
On trouve des établissements scolaires primaires dans la commune.
Les autoroutes A54 et A9 et les nationales N106 et N113 sont accessibles à moins de 8 km.
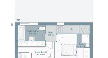
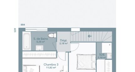
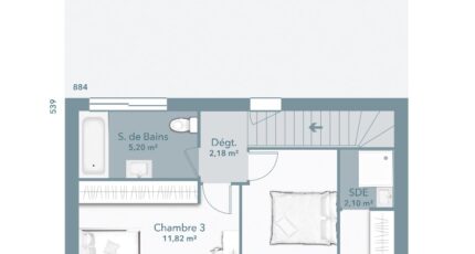
Avec Familia 92 offrez-vous une belle maison familiale à étage avec de beaux volumes, une suite parentale, et un cellier au rez-de-chaussée. Et à l'étage, 1 chambre avec dressing, une salle de bains équipée et une autre chambre avec sa salle d'eau privative.
Le garage vient compléter ce modèle avec son accès direct au cellier attenant à la cuisine, et le tout sur une parcelle de 200 m².
PLANS PERSONNALISABLES.
RE2020 + GARANTIES CONSTRUCTEUR COMPRISES.
Contactez nous pour plus d'informations : Agence MAISONS FRANCE CONFORT St Gely du Fesc au 04-67-66-49-65.
Annonce proposée par un Agent Commercial Partenaire.
Mentions légales
Terrain proposé par un partenaire foncier selon disponibilités et autorisation de publicité au prix de 99 000 €. Hors droit d'enregistrement et frais de notaire. Terrain + Maison proposés au prix de 317 000 € (Hors branchements et raccordements, papiers peints, peintures, revêtement de sol dans les chambres. Tarif modifiable sans préavis). Etiquette énergie : A. Différents modèles disponibles pour ce terrain. Assurances et garanties du constructeur (RC professionnelle, décennale, dommage ouvrage, garantie de remboursement de l'acompte, livraison à prix et délai convenu) : https://www.maisons-france-confort.fr/mentions-legales/. HEXAOM Services est enregistré auprès de l'ORIAS en tant que Courtier en financement, Niveau 1, sous le numéro 14001345.Agence Maisons France Confort de Saint-Gély-du-Fesc (34980)
- Téléphone :
- 04 67 66 49 65
- Adressse :
- 22 rue des lavandes
34980 Saint-Gély-du-Fesc, France
