Maison neuve à
Chalifert (77144) Référence : CY2404176_2

Prix du projet : Maison avec Terrain

prix 344 000 €

  • 5 pièces
  • 3 chambres
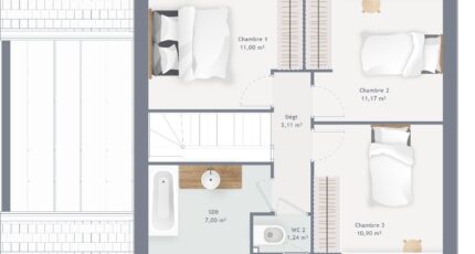
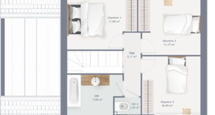
  • Surface maison 90 m2

VENTE : maison de 5 pièces (90 m²) à Chalifert
IDÉALEMENT SITUÉE - MAISON 5 PIÈCES NEUVE
Au pied de la gare d'Esbly (Paris à 30 min avec le Transilien P), à vendre idéalement située dans Chalifert (77144), votre agence Maisons France Confort Mareuil-lès-Meaux est ravie de vous présenter cette maison de 5 pièces de 90 m² et de 492 m² de terrain.
C'est une maison de 2 niveaux. Son intérieur offre trois chambres, une cuisine et une salle de bains. Cette maison est neuve.
Cette maison se situe dans un quartier prisé. Il y a l'École Primaire Clos de la Fontaine à moins de 10 minutes à pied. Côté transports en commun, on trouve la ligne de RER A (Chessy-Marne-La-Vallée) ainsi que sept gares à moins de 10 minutes en voiture. Il y a des commerces dans les environs.
Elle est proposée à l'achat pour 334 280 €.
Prenez contact avec notre constructeur (Cedric YAHIAOUI : 06-66-57-00-63) pour obtenir de plus amples renseignements sur la maison. Maisons France Confort Mareuil-lès-Meaux vous accompagne dans tous vos projets immobiliers et dans toutes vos démarches.

Annonce proposée par un Agent Commercial Partenaire.

Mentions légales

Terrain proposé par un partenaire foncier selon disponibilités et autorisation de publicité au prix de 290 000 €. Hors droit d'enregistrement et frais de notaire. Terrain + Maison proposés au prix de 344 000 € (Hors branchements et raccordements, papiers peints, peintures, revêtement de sol dans les chambres. Tarif modifiable sans préavis). Etiquette énergie : A. Différents modèles disponibles pour ce terrain. Assurances et garanties du constructeur (RC professionnelle, décennale, dommage ouvrage, garantie de remboursement de l'acompte, livraison à prix et délai convenu) : https://www.maisons-france-confort.fr/mentions-legales/. HEXAOM Services est enregistré auprès de l'ORIAS en tant que Courtier en financement, Niveau 1, sous le numéro 14001345.

Contactez l'agence de Mareuil-lès-Meaux

01 60 09 28 30

    * Champs obligatoires

    Vos informations sont traitées par HEXAOM et transmises à un conseiller commercial qui vous contactera afin de répondre à votre demande. Les plans et images présentés sur notre site sont la propriété d’HEXAOM et ne peuvent pas être reproduits sans son accord. Pour retrouver notre politique de protection des données personnelles et exercer vos droits conformément à la « loi informatique et liberté » cliquez-ici.