Maison neuve à
Château-Thierry (02400) Référence : TM2482149_13

Prix du projet : Maison avec Terrain

prix 240 000 €

  • 5 pièces
  • 3 chambres
  • Surface maison 90 m2

VENTE d'une maison T5 (90 m²) à Château-Thierry
MAISON 5 PIÈCES NEUVE
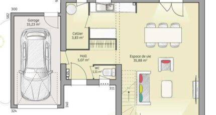
À quelques minutes de la gare (Paris à 1 h par le Transilien P), à vendre à Château-Thierry (02400), Maisons France Confort Magny-le-Hongre vous présente cette maison de 5 pièces de 90 m². Elle se divise en trois chambres, une cuisine et une salle de bains.
Le terrain de la propriété est de 489 m².
C'est une maison de 2 niveaux. Elle est neuve.
Il y a des écoles de tous niveaux (de la maternelle au lycée) à moins de 10 minutes à pied. Niveau transports en commun, on trouve la gare Château-Thierry juste à côté. L'autoroute A4 est accessible à 4 km. Il y a des commerces, des boucheries-charcuteries, un bureau de poste, deux supérettes et des épiceries à proximité du bien.
Elle est proposée à l'achat pour 240 000 €.
Prenez contact avec notre agence (MELES Teddy : 06-17-56-83-36) pour toute information sur cette maison.

Annonce proposée par un Agent Commercial Partenaire.

Mentions légales

Terrain proposé par un partenaire foncier selon disponibilités et autorisation de publicité au prix de 68 000 €. Hors droit d'enregistrement et frais de notaire. Terrain + Maison proposés au prix de 240 000 € (Hors branchements et raccordements, papiers peints, peintures, revêtement de sol dans les chambres. Tarif modifiable sans préavis). Etiquette énergie : A. Différents modèles disponibles pour ce terrain. Assurances et garanties du constructeur (RC professionnelle, décennale, dommage ouvrage, garantie de remboursement de l'acompte, livraison à prix et délai convenu) : https://www.maisons-france-confort.fr/mentions-legales/. HEXAOM Services est enregistré auprès de l'ORIAS en tant que Courtier en financement, Niveau 1, sous le numéro 14001345.

Contactez l'agence de Magny-le-Hongre

01 84 80 92 96

    * Champs obligatoires

    Vos informations sont traitées par HEXAOM et transmises à un conseiller commercial qui vous contactera afin de répondre à votre demande. Les plans et images présentés sur notre site sont la propriété d’HEXAOM et ne peuvent pas être reproduits sans son accord. Pour retrouver notre politique de protection des données personnelles et exercer vos droits conformément à la « loi informatique et liberté » cliquez-ici.