Maison neuve à
Château-Thierry
(02400) Référence :
TM2482230_43
Prix du projet : Maison avec Terrain
prix 300 000 €
- 5 pièces
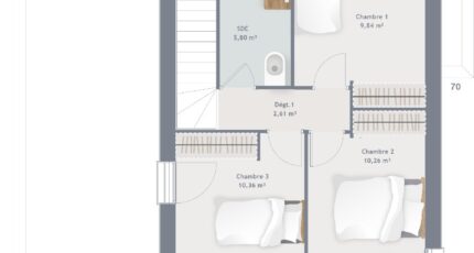
- 3 chambres
- Surface maison 90 m2
VENTE : maison F5 (90 m²) à Château-Thierry
MAISON 5 PIÈCES NEUVE
À vendre : proche du Transilien P (1 h de Paris), votre agence Maisons France Confort Magny-le-Hongre est ravie de vous proposer à Château-Thierry (02400), cette maison de 5 pièces de 90 m².
Il s'agit d'une maison de 2 niveaux. Son intérieur est composé de trois chambres, d'une cuisine et d'une salle de bains. Cette maison est neuve.
Le terrain du bien s'étend sur 200 m².
Des établissements scolaires de tous types (de la maternelle au lycée) sont implantés à moins de 10 minutes à pied. Côté transports en commun, il y a la gare Château-Thierry dans les environs. L'autoroute A4 est accessible à 4 km. On trouve des commerces, un bureau de poste, des boucheries-charcuteries, des épiceries et deux supérettes à quelques minutes.
Elle est à vendre pour la somme de 300 000 €.
Prenez contact avec notre constructeur (MELES Teddy : 06-17-56-83-36) pour toute information sur cette maison ou sur les modalités de vente. Maisons France Confort Magny-le-Hongre vous accompagne à toutes les étapes de l'achat et dans tous vos projets immobiliers.
Annonce proposée par un Agent Commercial Partenaire.
Mentions légales
Terrain proposé par un partenaire foncier selon disponibilités et autorisation de publicité au prix de 68 000 €. Hors droit d'enregistrement et frais de notaire. Terrain + Maison proposés au prix de 300 000 € (Hors branchements et raccordements, papiers peints, peintures, revêtement de sol dans les chambres. Tarif modifiable sans préavis). Etiquette énergie : A. Différents modèles disponibles pour ce terrain. Assurances et garanties du constructeur (RC professionnelle, décennale, dommage ouvrage, garantie de remboursement de l'acompte, livraison à prix et délai convenu) : https://www.maisons-france-confort.fr/mentions-legales/. HEXAOM Services est enregistré auprès de l'ORIAS en tant que Courtier en financement, Niveau 1, sous le numéro 14001345.Agence Maisons France Confort de Magny-le-Hongre (77700)
- Téléphone :
- 01 84 80 92 96
- Adressse :
- 11 rue de Courtalin
77700 Magny-le-Hongre, France
