Maison neuve à
Château-Thierry
(02400) Référence :
TM2482149_20
Prix du projet : Maison avec Terrain
prix 240 000 €
- 5 pièces
- 3 chambres
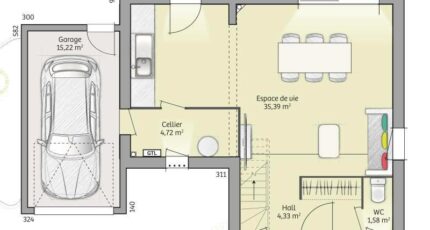
- Surface maison 90 m2
Château-Thierry : maison T5 (90 m²) à vendre
MAISON 5 PIÈCES NEUVE
À côté du Transilien P (1 h de Paris), nous sommes ravis de vous présenter en vente à Château-Thierry (02400), cette maison de 5 pièces de 90 m² et de 489 m² de terrain.
Cette maison comporte 2 niveaux. Elle compte trois chambres, une cuisine et une salle de bains. La maison est neuve.
Des établissements scolaires de tous niveaux sont implantés à moins de 10 minutes à pied. Niveau transports, il y a la gare Château-Thierry dans un rayon de 1 km. L'autoroute A4 est accessible à 4 km. On trouve des commerces, deux supérettes, un bureau de poste, des épiceries et des boucheries-charcuteries dans les environs.
Elle est proposée à l'achat pour 240 000 €.
N'hésitez pas à prendre contact avec notre agence (Teddy MELES : 06-17-56-83-36) pour tout renseignement sur cette maison ou sur les démarches à suivre. Concrétisez vos projets immobiliers avec Maisons France Confort Magny-le-Hongre.
Annonce proposée par un Agent Commercial Partenaire.
Mentions légales
Terrain proposé par un partenaire foncier selon disponibilités et autorisation de publicité au prix de 68 000 €. Hors droit d'enregistrement et frais de notaire. Terrain + Maison proposés au prix de 240 000 € (Hors branchements et raccordements, papiers peints, peintures, revêtement de sol dans les chambres. Tarif modifiable sans préavis). Etiquette énergie : A. Différents modèles disponibles pour ce terrain. Assurances et garanties du constructeur (RC professionnelle, décennale, dommage ouvrage, garantie de remboursement de l'acompte, livraison à prix et délai convenu) : https://www.maisons-france-confort.fr/mentions-legales/. HEXAOM Services est enregistré auprès de l'ORIAS en tant que Courtier en financement, Niveau 1, sous le numéro 14001345.Agence Maisons France Confort de Magny-le-Hongre (77700)
- Téléphone :
- 01 84 80 92 96
- Adressse :
- 11 rue de Courtalin
77700 Magny-le-Hongre, France
