Maison neuve à
Château-Thierry (02400) Référence : TM2482230_1

Prix du projet : Maison avec Terrain

prix 240 000 €

  • 5 pièces
  • 3 chambres
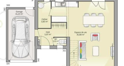
  • Surface maison 90 m2

Maison F5 (90 m²) en vente à Château-Thierry
MAISON 5 PIÈCES NEUVE
À côté du Transilien P (1 h de Paris), à vendre à Château-Thierry (02400), laissez vous charmer par cette maison de 5 pièces de 90 m² et de 200 m² de terrain.
Il s'agit d'une maison de 2 niveaux. Son intérieur se divise en trois chambres, une cuisine et une salle de bains. Cette maison est neuve.
Il y a tous les types d'établissements scolaires à moins de 10 minutes à pied. Niveau transports, on trouve la gare Château-Thierry dans un rayon de 1 km. Il y a un accès à l'autoroute A4 à 4 km. Il y a des commerces, des épiceries, deux supérettes, des boucheries-charcuteries et un bureau de poste à proximité du bien.
Elle est proposée à l'achat pour 240 000 €.
Contactez Teddy MELES (06-17-56-83-36) pour tout renseignement sur la maison ou sur les modalités de vente.

Annonce proposée par un Agent Commercial Partenaire.

Mentions légales

Terrain proposé par un partenaire foncier selon disponibilités et autorisation de publicité au prix de 68 000 €. Hors droit d'enregistrement et frais de notaire. Terrain + Maison proposés au prix de 240 000 € (Hors branchements et raccordements, papiers peints, peintures, revêtement de sol dans les chambres. Tarif modifiable sans préavis). Etiquette énergie : A. Différents modèles disponibles pour ce terrain. Assurances et garanties du constructeur (RC professionnelle, décennale, dommage ouvrage, garantie de remboursement de l'acompte, livraison à prix et délai convenu) : https://www.maisons-france-confort.fr/mentions-legales/. HEXAOM Services est enregistré auprès de l'ORIAS en tant que Courtier en financement, Niveau 1, sous le numéro 14001345.

Contactez l'agence de Magny-le-Hongre

01 84 80 92 96

    * Champs obligatoires

    Vos informations sont traitées par HEXAOM et transmises à un conseiller commercial qui vous contactera afin de répondre à votre demande. Les plans et images présentés sur notre site sont la propriété d’HEXAOM et ne peuvent pas être reproduits sans son accord. Pour retrouver notre politique de protection des données personnelles et exercer vos droits conformément à la « loi informatique et liberté » cliquez-ici.